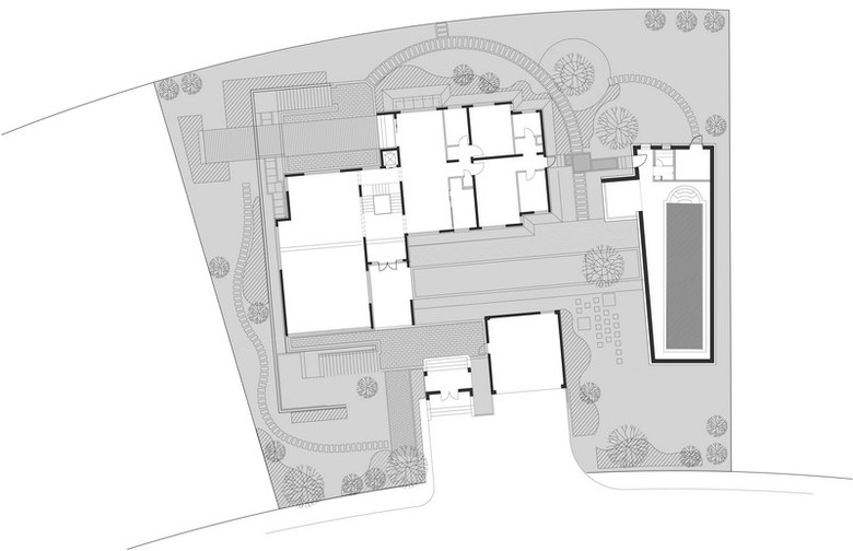
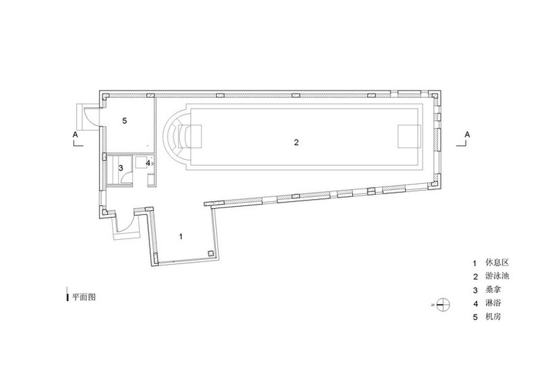
Pool at Fragrant Hill
This site is at the foot of Fragrant Hill. It is a swimming pool annex next to the main housing area. The L-shaped form divides the outdoor space into two parts as a front and back courtyard. It also shields the courtyard from neighboring homes and the street. The exterior wall is cladded in stone from a local quarry. The skylights and windows of various sizes let in sunlight and reflect the passing of time during the course of a day and seasons of the year. Through these openings one can look upon the summer trees’ lush foliage and winter snows, further enriching one’s swimming experience.
Status: under construction
Client: Private
Building Area: 123 sq.m.
Partner-in-Charge: Zhao Zhonggui
Project Architect: Xu Xiaoye
Design Period: 2009
Construction Period:2010-2011
- Jahr
- 2011









