New Faculty of Architecture at the University of Siegen

Bringing It Back to the City

Katinka Corts | 5. June 2024
Model: FAKT+Gustav Düsing

The campus of the University of Siegen is located around five kilometers (three miles) north of the main train station. The campus, home to the Faculty of Architecture, is a beautiful location surrounded by greenery, but its not an ideal situation for the Siegen, which in itself is prosperous but whose center is increasingly losing its stores and thus its street life. 

With the idea of developing a city campus and thus bringing student life closer to the center, the university looked for locations to relocate the faculties. One of the places identified is the former printing house of the Siegener Zeitung newspaper on Häutebachweg. The two-story building, now almost 50 years old, is very resilient due to its use, which makes it possible to add up to two floors to the inconspicuous building with its exposed aggregate concrete facade and turn it into an important educational landmark in the center of the city. With rooms up to six meters high and a floor area of around 20 x 50 meters (65 x 165 feet), the reinforced concrete frame structure is predestined for conversion, expansion, and continued, sustainable use.

Studio (Visualization: FAKT+Gustav Düsing)
The top floor beneath the suspended timber roof (Visualization: FAKT+Gustav Düsing)

In August 2023, the Faculty of Architecture organized a summer school to kick off the planning process. Six architecture firms, selected from 30 applications, were involved, all of them known for their interest in sustainable and circular construction: ADEPT (Copenhagen), AgwA (Brussels), Assemble (London), FAKT+Gustav Düsing (Berlin), ZRS/coopdisco (Berlin) and Hütten & Paläste (Berlin).

Dozens of students from Germany and Austria took part in the summer school. Together with the architects, they not only dealt with the building itself and the materials to be used in their concepts, they also examined the new location in the city — now much closer than the current one — and the possibilities of networking the school across regions. “It was a bit chaotic at times with all the people on site, but in itself it was a good test for how the faculty will later operate on site,” Gustav Düsing recalls of this phase.

The dialogue process with the city, the university, and the teachers and students from the Faculty of Architecture was followed by further development of the designs. While the ZRS/coopdisco team focused more on the gradual reuse of the site by 2030, Adept's design showed possible building and square situations based on their architecture school in Aarhus. In their contribution, FAKT and Gustav Düsing formulated the aim of using materials as sparingly as possible and only creating slender, subtle additions — an approach that we are already familiar with from Düsing's work in Braunschweig and Tel Aviv and that can also be found in FAKT's previous work.

Cross section (Drawing: FAKT+Gustav Düsing)
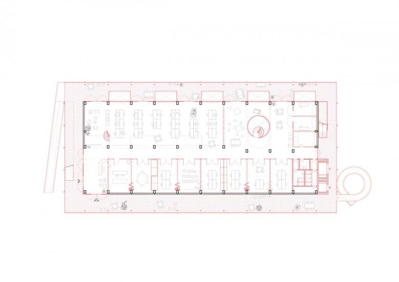
Ground floor plan (Drawing: FAKT+Gustav Düsing)
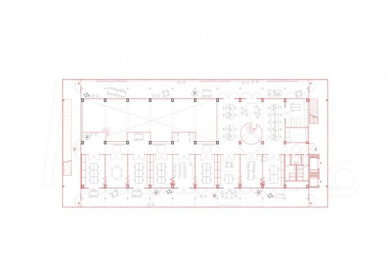
First floor plan (Plan: FAKT+Gustav Düsing)
Second floor plan (Plan: FAKT+Gustav Düsing)
Third floor plan (Drawing: FAKT+Gustav Düsing)

The winning team: FAKT and Gustav Düsing. They would extend the existing building with lightweight materials and place a material-saving suspended timber roof over its proposed four stories, which is subject to tensile loads. The additional component loads are transferred via the primary structure at the facade, meaning no additional foundations are required. The parabolic shape of the roof is striking and makes the previously simple and inconspicuous printing house a special feature in the cityscape, even from a distance.

The open first floor and the free upper floor break up the form; the new perimeter area set in front of the existing facade will not be heated as a buffer zone, but it can be used. An element that could already be seen in the winning competition entry for the embassy residence building in Tel Aviv can also be found here: the plan is to create a climatic intermediate zone for additional uses with a suspended metal facade. Düsing described this transfer in a recent interview: “Topics that we could only touch on in the previous project are developed in greater detail in the next design, newly applied, and possibly also addressed in the next project.” In Siegen, the shell structure of the building is retained, while facade elements that are no longer required are given a new function as seating.

The university hopes that the winning design will serve as a model for “new forms of university coexistence, but also for dealing with existing buildings.” With the extension — but also thanks to the new location in the city center — this could work in a similar way to the TU Braunschweig, whose student house is currently full of life. Despite all the possibilities of digital learning, the new building there seems to have found a way to bring community and (analog) collaboration back into focus.

Visualization: FAKT+Gustav Düsing
Visualization: FAKT+Gustav Düsing

The article was first published as “Wieder in die Stadt geholt” on German-Architects. English translation edited by John Hill.

Other articles in this category