Hospital in Bangladesh Wins RIBA International Prize
The Royal Institute of British Architects (RIBA) has announced the winner of the 2021 RIBA International Prize: the Friendship Hospital in Bangladesh designed by Kashef Chowdhury/URBANA.
The announcement of the winner of the biennial prize comes a couple of months after three finalists were selected from the sixteen winners of the 2021 International Awards for Excellence. The Friendship Hospital in Bangladesh by Kashef Chowdhury/URBANA beat out the James-Simon-Galerie by David Chipperfield Architects Berlin and Lille Langebro by WilkinsonEyre with Urban Agency.
This year's award is the third for the RIBA International Prize, which was established in 2016 to replace the RIBA Lubetkin Prize and be "open to all qualified architects anywhere in the world," not just British architects. The inaugural prize, given that same year, went to UTEC (Universidad de Ingeniería y Tecnología) in Peru by Grafton Architects, and then the second prize, in 2018, was given to Children Village in Brazil by Aleph Zero and Rosenbaum.
The Friendship Hospital, located in a southern region of Bangladesh, is a rural community hospital with eighty beds. Commissioned by Friendship, a twenty-year-old NGO based in Bangladesh, the hospital, completed in 2018, sits on land that was donated by a local philanthropist. The landscape around the hospital has shifted over time from fields of grain to shrimp fisheries, a direct result of rising sea levels pushing saltwater inland.
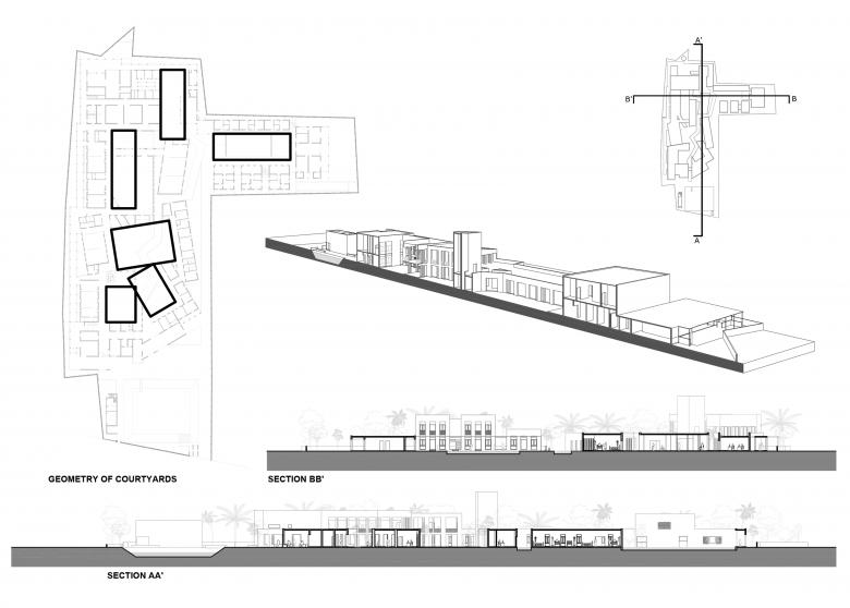
Architect Kashef Chowdhury incorporated the surrounding water in the plan of the hospital, designing a "rainwater-collecting canal landscaping creatively in between the multiple blocks masterplan to separate inpatient and outpatient departments," per RIBA's web page on the project. In addition to addressing rainwater, the canals, evident in the photographs and drawings here, aid in creating a cooling micro-climate during the hot summers.
In a statement from RIBA, the hospital was described by the Grand Jury* as embodying an “architecture of humanity” and as an “exemplar of innovative architecture that addresses critical global issues — unequal access to healthcare and the crushing impact of climate breakdown on vulnerable communities.”
- Odile Decq (Jury chair), French architect and urban planner
- Es Devlin, British artist and designer
- Jeanne Gang, American architect and founder of Studio Gang
- Rossana Hu, architect and founding Partner of Neri&Hu
- Gustavo Utrabo, winner of the 2018 RIBA International Prize and Emerging Architect Prize
- Architect: Kashef Chowdhury/URBANA
- Date of Completion: April 2018
- Client: Friendship NGO
- Location: Shyamnagar, Bangladesh
- Enclosed Floor Area: 4,777 m²
- Contractor: Golam Mostofa Limited
- Structural Design: Descon Engineers
- Electrical Engineering: Independent
- Plumbing Design: M/S High Speed Engineers
- Sewage Treatment: Sigma Engineers Ltd.





