Philharmonic Hall in Poland Wins EU Mies Prize 2015
The European Commission, along with the Fundació Mies van der Rohe, announced today that Szczecin Philharmonic Hall is the winner of the European Union Prize for Contemporary Architecture – Mies van der Rohe Award 2015.
The building was designed Barozzi / Veiga, the Barcelona-based studio of Fabrizio Barozzi and Alberto Veiga, in collaboration with Studio A4. They received the EU Mies Prize today, May 8, in a ceremony at the Mies van der Rohe Barcelona Pavilion.
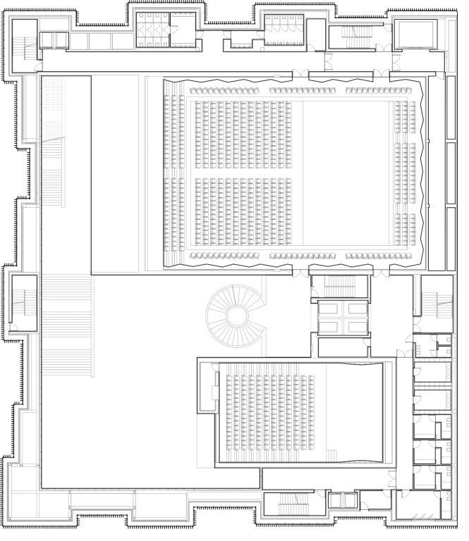
Designed for the City of Szczecin on the site of the "Konzerthaus," which was destroyed during the Second World War, the Philharmonic Hall houses a 1,000-seat symphony hall, a 200-seat chamber music hall, a multifunctional space for exhibitions and conferences, and a large foyer. The exterior is covered in glass that glows from the inside in the evening, while the main hall is is clad by triangular wooden acoustic panels gilded with gold leaf. The serrated profile "dialogues well with the silhouette of the nearby Castle," per a statement from the jury.
The jury* summarized the prize in the statement:
This winning project finds a convincing formal and spatial strategy for a city which strives for a better future in a fast changing economy and social patterns, delivering a dignity to urban life and the same time enhancing the city’s specific historical identity with a contemporary "monument."
*The 2015 Jury:
• Margarita Jover, aldayjover architecture and landscape
• Lene Tranberg, Lundgaard & Tranberg
• Peter L. Wilson, Bolles + Wilson
• Li Xiangning, Deputy Dean, College of Architecture & Urban Planning, Tongji University
• Tony Chapman (Representative of the Prize Steering Committee), Head of Awards at RIBA
• Hansjörg Mölk (Upholder of high quality architecture as a Client), CEO MPreis, Völs
• Giovanna Carnevali (Secretary of the Jury, without the right to vote), Director Fundació Mies van der Rohe
• Ivan Blasi (Coordinator of the Prize, without the right to vote), Architect
Related articles
-
-
-
Isabel Zumtobel: 'We Believe in the Power of Design to Change the Future for the Better'
World-Architects Editors | 18.11.2025





