Trump in Mumbai

John Hill | 13. August 2014
Image: Trump Tower Mumbai

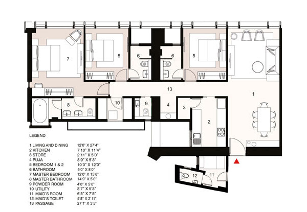
Normally we wouldn't get to excited about the mention of a new project by Trump, a hit-or-miss developer who can take one of his better buildings and disfigure it in one stroke of his name, but the inclusion of WOHA – architects capable of designing quality large-scale projects in tropical regions – has us optimistic about what will naturally be called Trump Tower Mumbai. Not surprisingly, the tower is golden, or what is described in a statement from Lodha as "crystal glass inspired architecture." Further, the apartments are called "uber-luxe 3 and 4 bedroom residences with dazzling interiors" that will be designed by Hirsch Bedner Associates Studio. Prices are estimated at USD$80 million and USD$100 million for the 3 and 4 bedroom residences respectively, with membership in a private jet service to boot.

The tower is actually part of Lodha's 17.5-acre (7-hectare) The Park development in Mumbai's Worli neighborhood, a development also overseen by WOHA. Bangkok's P Landscape is responsible for the landscape design for both the master plan and the tower. Construction on other parts of The Park is underway, but a completion date has not yet been for Trump Tower Mumbai.

The Plan master plan; Trump Tower Mumbai is the yellow triangle at left-center. Drawing courtesy of Trump Tower Mumbai
Wing A and Wing B plans. Drawing courtesy of Trump Tower Mumbai
3 bedroom unit plan. Drawing courtesy of Trump Tower Mumbai

Other articles in this category