Partner - JUNG
How smart is the building? When smart technology meets architecture
Currently, buildings account for 40% of total energy consumption. In order to achieve the new climate targets, urban planners need to increasingly focus on climate-oriented design and energy efficiency. It is well known that smart buildings, i.e. buildings that are equipped with intelligent building automation, can contribute to significant energy savings. Yet what does this development mean for architecture? And: should technology from now on patronize the users of a building?
Quite the opposite, argues the JUNG Company. Smart technology gives users freedom by anticipating their wishes and emphasizing comfort and convenience.
Founded in 1912, the family-owned company has been a leading manufacturer of electrotechnical solutions in Germany for three generations. With the motto “Progress as tradition”, the company has always focused on the use of innovative technology and intuitive operation: people are integrated into building climate planning through subtle incentives. With the “smart” products, more than 90% of which are manufactured in Germany, the company aims to minimize usage errors, thus making a significant contribution to the energy turnaround in the building sector.
This is to be achieved, among other things, by the KNX standard co-developed by JUNG and valid worldwide, which enables uniform networking of all smart components in a building. JUNG presents the potential of this technology in the newly designed showroom of its Vilnius branch. KNX allows all functions of a room, including lighting, ventilation, shading, temperature, and multimedia, to be centrally networked and controlled. In interaction, this results in “an optimal use of resources”.
Is this the emergence of a creative force that escapes the influence of architects? Does this development push them into the background?
The company has taken a clear position on this issue: It rejects the “either-or” philosophy and emphasizes collaboration and integration. In fact, according to JUNG, the technical solutions should be considered from the outset, because sustainable building requires holistic architectural plan. One that considers the aspects of technology alongside design and function already in the planning phase and does not incorporate it into the design as an afterthought.
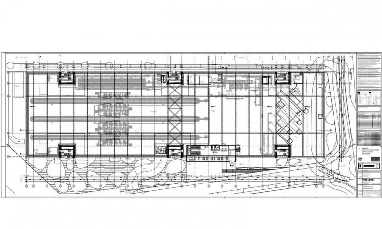
This fusion of architecture and modern building technology was a central idea for O&O Baukunst when designing the International Service Center for the jewelry company beeline GmbH. The German-Austrian architectural firm had won out over six competitors in a competition in Cologne and was awarded the contract by Beeline real estate. The project was to be built in Cologne-Deutz on the right bank of the Rhine as the company’s European headquarters, but was not implemented after the approval process was completed. Thus, the project remains an intelligent prototype that already incorporates smart industrial architecture in its conceptual design: the approximately 170-meter-long, 50-meter-wide complex is based entirely on technical networking – from the smallest element of the jewel to fully automated warehouse logistics, the conveyor belts of the order-picking system, and creative production on the upper floors. An example of how architecture and building technology can form a symbiosis in the digital age.
The trend towards ever greater digitalization and networking is also making its way into architecture, and the demands on urban planners and architects are constantly changing. An integrative approach is necessary for architecture to keep pace with the rapid development of technology. If we continue to adhere to traditional architectural concepts, we will not be able to master the challenges of the climate crisis in the building sector. Smart buildings with networked control elements have great potential to make energy use more efficient; only close cooperation between the various trades can create a basis for “smart” building of the future.
Interactive map
Using selected building projects by O&O Baukunst, the topic is presented taking the city of Cologne as an example. For information on the projects, click here for the interactive map.
«Town Planning in Democratic Structures» is a project of O&O Baukunst Köln, C. FATH and World-Architects.
Related articles
-
Spotlight Arabia Sets the Stage for New Arabian-Architects Platform
Catherine Belbin | 28.10.2025 -
-
-




