ONG&ONG

66MRN-House

ONG&ONG | 26. August 2015
Photo: Derek Swalwell (All images courtesy of ONG&ONG)
Photo: Derek Swalwell

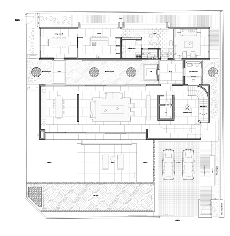
The brief called for all spaces on the ground floor to form a cohesive whole so that when all doors are open on the ground floor, the individual spaces merge into a one – starting from the lap pool and garden at the entrance, to the living room in the front block and all the way to the kitchen in the rear block.

Photo: Derek Swalwell

Designers conceptualized two main volumes for the house, which consist of high walls clad in concrete, granite and aluminum screens. The front block houses the social spaces, such as the living and formal dining areas, while the rear block houses the kitchen and service areas.

Photo: Derek Swalwell

The full-height glass panel doors that line the two lengths of the front block can be pulled back, allowing all spaces on the ground to flow into each other seamlessly, while maximizing views of the garden and pools.

Photo: Derek Swalwell

The space between the two volumes is open to the sky and is occupied by a reflective pool, making it the attractive central focal point of the house. The three-meter-wide void is prominent as the central focal point because it contrasts with the three-story-high volumes that look visually heavy. It offers qualities of light and spaciousness as opposed to the solid volumes, which are set against the floor.  Trees in the reflective pool add softness to contrast with the solid volumes. This void ensures cross-ventilation in all the spaces because it pulls the air up through it, so hot air goes up and cool air goes down into the various rooms, making internal circulation efficient. 

Photo: Derek Swalwell

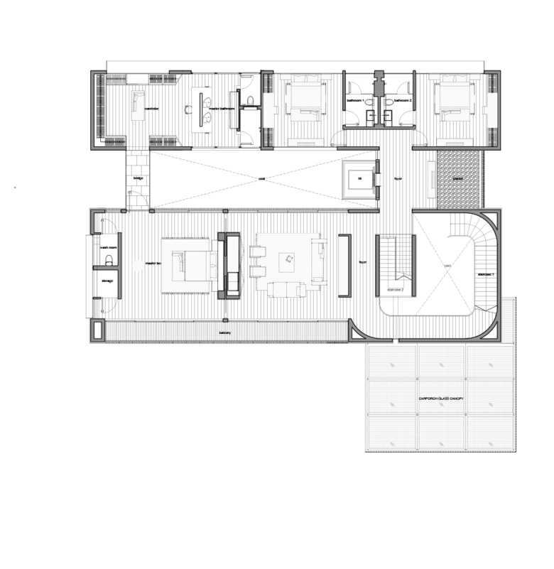
The master bedroom sits on the second floor of the main social volume, while in the attic floor above is an additional bedroom and number of multipurpose spaces. Adjoining terraces and open decks lined in artificial grass make the rooftop an interesting space where lines between indoor and outdoor space are blurred.

Photo: Jaume Albert Marti

The two volumes are divided into two materials – the service volume uses fare-faced concrete texture with the concrete's natural color. The front volume that contains social spaces like the living, dining, master bedroom are clad in stone granite. Both the granite cladding and concrete keep the house cool inside.

Photo: Derek Swalwell

PROJECT CREDITS

Completion date: Aug 2014
Location: Singapore
Architect: ONG&ONG Pte Ltd
Project directors: Diego Molina & Maria Arango
Photographers: Derek Swalwell; Jaume Albert Marti

First floor plan (Drawing: ONG&ONG)
Second floor plan (Drawing: ONG&ONG)
Attic floor plan (Drawing: ONG&ONG)
Building section (Drawing: ONG&ONG)

Other articles in this category