Besonías Almeida Arquitectos

Aranzazu House

Besonías Almeida Arquitectos | 2. January 2018
Photo: Federico Kulekdjian

Project: Aranzazu House, 2017
Location: Tortuguitas, Buenos Aires, Argentina
Design: Besonías Almeida Arquitectos (María Victoria Besonías, Guillermo de Almeida)
Collaborators: Arch. Micaela Salibe, Arch. Diorella Fortunati, Arch. Guido Galluppo
Land area: 677 m2
Built area: 264 m2
 

Photo: Federico Kulekdjian

They requested a house of permanent use with the special requirement that it should make it possible to live intensely the relationship between interior and exterior spaces, so appreciated by the clients. Another request expressed was that, although they were interested in a house built with exposed concrete, they wanted the presence of the wood to break that monochromatic expression.

Photo: Federico Kulekdjian

Regarding the programmatic needs, the house had to have four bedrooms, one on the ground floor and one with an integrated bathroom and dressing room, a spacious living room with a fireplace, and a space of intense family life integrating the dining room, the kitchen and an intimate living room. It should also have a large gallery with a grill, places to eat and be outdoors, a pool and space to park three cars.

Photo: Federico Kulekdjian

Interested on the landscape, we decided that the project should not only preserve the existing trees in the lot, but that vegetation would be the first and fundamental starting point of the project.

Photo: Federico Kulekdjian

We thought then that the house had to develop accommodating itself in the free holes left by the trees and wrapping them to make them part of the proposed spaces.

Photo: Federico Kulekdjian

To achieve this, we decided to work with a spatial grid of 3.80m on each side, of double or single height depending on the case, which would allow us to solve the different rooms and also the gaps that allow the trees to pass.

Photo: Federico Kulekdjian

In relation to the materiality requirements of the clients, we decided that the ground floor of the house, and its prolongation in the semi-covered spaces, would be resolved with visible concrete partitions towards the public space. These form a continuous plinth that is drilled according to the needs of the rooms that define and on which rests a lighter structure of metal profiles and panels with minimal openings to the streets and with external termination of wooden boards. On the contrary, towards the interior and enveloping the oaks, the house is completely open, so that each room participates in the contiguous room and the landscape.

Photo: Federico Kulekdjian
Photo: Federico Kulekdjian
Photo: Federico Kulekdjian
Photo: Federico Kulekdjian
Photo: Federico Kulekdjian
Photo: Federico Kulekdjian
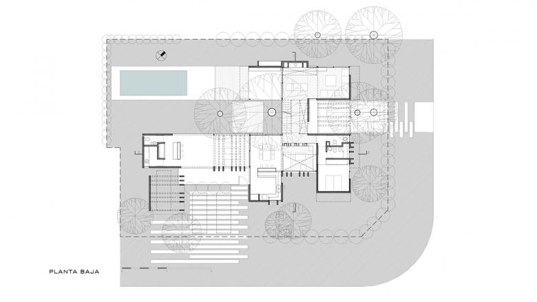
Ground Floor Plan (Drawing: María Victoria Besonías, Guillermo de Almeida)
Upper Floor Plan (Drawing: María Victoria Besonías, Guillermo de Almeida)
Section 1-1 (Drawing: María Victoria Besonías, Guillermo de Almeida)
Section 2-2 (Drawing: María Victoria Besonías, Guillermo de Almeida)

Other articles in this category