HoG Architektur ZT GmbH
Ballhaus
The new residential building Stadthaus Ballhausgasse fills a long-time void on this street in the historic city center of Graz, Austria.
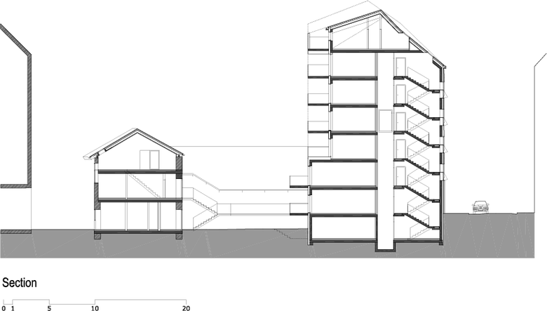
The street facade interprets the design principals of the late 19th century using a contemporary language. The plasticity created by a game of light and shadow on the cornices, protruding windows and surrounding frames, as well as their arrangement, is achieved by the absorption and continuation of these elements in the new mirror-effect facade. A three-dimensional appearance, in the form of slightly inclined triangular surfaces, emerges and links the different cornice heights of the neighboring buildings, thus making the reduced number of stories, when compared to the late 19th century buildings, less clearly recognizable. The result is a differentiated interaction between facade and window surfaces on several levels, which reveal new details from different perspectives. As a representative view, reminiscent of the end of the 19th century, the street facade complex design and higher expenditure on materials contrasts with the unadorned courtyard facade.
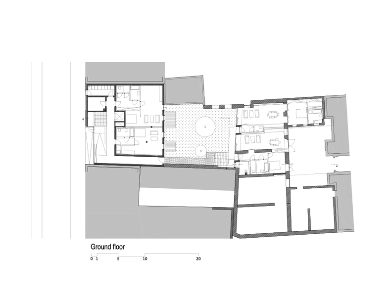
This void was the only vacant site in a continuous, homogenous and unbroken row of houses, thus unique in it´s context. Stadthaus Ballhausgasse explores a game of integration and mere imitation, using a new type of material in the form of mirror-finished, high-gloss polished stainless steel — one of the highest quality materials of our times, stainless steel has a subtle life of its own, as it is not as perfectly smooth and hard as glass. Via reflection, the facade depicts the opposite facades, which appear refracted as in a kaleidoscope due to the slightly different inclination. The new building has the paradoxical effect of having both a strong presence and absence via dematerialization.
Project Facts
Location: Ballhausgasse, 8010 - Graz
Concept & Design: HoG architektur / Hope of Glory
Clemens Luser, Martin Emmerer, Hansjörg Luser, Jörn Herberhold
Years: 2010 – 2013
Gross floor area: 2,307 m²
Units: 18 Units (6 in the court)
Related articles
-
Children’s Art Laboratory St. Pölten
Schenker Salvi Weber Architekten | 25.11.2024 -
-









