Dushe Architectural Design
Bayuquan Poly Theatre
A theater whose skin was designed to meet different performance requirements; it is made by steel-frame dome that can be rotated, opened and closed.
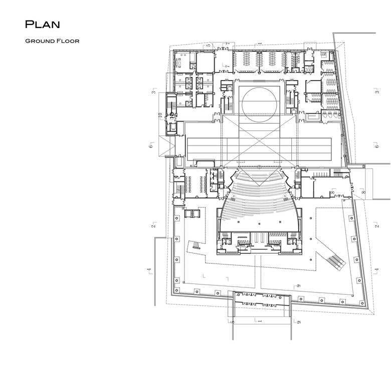
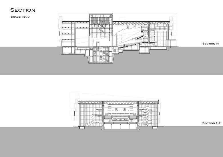
Bayuquan Poly Theatre has three levels above the ground level. The main construction contains a large Dance Theatre which is specific for dancing and musical performaces with a capacity of 1600 people, and a multi-functional theatre which can hold 800 people for dramatic plays.
The dome of the main Dance Theatre was designed for both structural purpose and a special function. The steel-frame dome can be rotated, opened and closed to meet different performance requirements. The interior U-shape plan adopts the form of roman traditional theatre and the space is separated into 3 levels vertically. Sight analysis was carried out to allocate the seats in the theatre. To ensure best acoustic performance, the main source will be natural and each seat for audience takes up 7.7 m³(the total volume is 12300 m³). The reverberation time could be adjusted due to different performance requirements.
Related articles
-
The Three-Body Problem: Trapped in a Wave Sandwich
Eduard Kögel, Scenic Architecture Office | 13.04.2026 -
-
-
A Loop for the Arts: The Xiao Feng Art Museum in Hangzhou
Eduard Kögel, ZAO / Zhang Ke Architecture Office | 15.12.2025






