dekleva gregorič architects
Brick Neighbourhood
How to establish a clear spatial, material and social identity of the neighbourhood?
This question was the basic principle when developing the design of objects and their surroundings in terms of deeper connection of future residents with their living environment.
The concept of the 3D erosion is resulting from the critique of the existing master plan with generic volumes in terms of size and height and their arbitrary position. This concept of sub-structuring of the volume is further reflected in the material expression: the initial envelope is defined with the brick layer and the cut-outs with balconies in render.
The selection of bricks as a preliminary material derived from the memory of the brickyard which used to be on site. Furthermore the bricks provide an opportunity as means of expression for additional micro-structuring of the facade surface. The material manipulation allows for a unique identity thus significant for the future community.
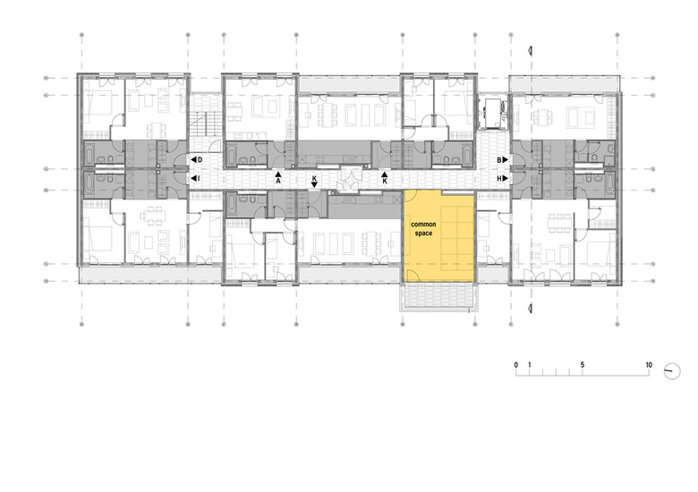
A clear systematic approach to the organisation of 185 dwellings was developed to allow for an array of 17 diverse flat types differentiated in terms of size and internal arrangement in order to address different needs of future residents. The position of the structure, installation and internal organisation of the flats with the backbone service stripe enables the internal flexibility - the diverse set of room distribution either as one large unified space or a set of smaller rooms. The system allows joining of smaller flats or separating of larger units, before, during and after the construction.
Communications are naturally illuminated from two sides, in this way a corridor becomes a place of meeting. Social interaction is upgraded by placing a shared common space above each building’s entrance. They provide the possibility for birthday parties, indoor playgrounds for wintery months, gym or any other activity.
On communal spaces’ glazing there are poems of Slovenian poets written. Each communal space, each residential community is literary enriched by the chosen poet. This contextual and semantic upgrade of the architecture allows the resident extra identification with his living environment and at the same time enriches cultural awareness of inhabitants. "We are living at Tone Pavček, next door entrance to Prešeren."
PROJECT DATA
Project Name: Brick Neighbourhood
Location: Ljubljana, Slovenia
Client: SSRS - National Housing Trust, public fund
Source: Open competition, 1. prize
Project Date: 2005 – 2011
Completion Date: 2014
Architect: dekleva gregorič architects
Competition Team: Aljoša Dekleva, Tina Gregorič, Lea Kovič, Flavio Coddou
Project Team: Aljoša Dekleva, Tina Gregorič, Lea Kovič, Martina Marčan, Andi Koder, Tea Smrke, Daniel Schwartz, Simon Vrščaj
Master Plan: LUZ d.d.
Landscape Design: dekleva gregorič architects
Landscape / Greenery: bruto d.o.o.
Photos: Miran Kambič








