architectenbureau cepezed

Brussels Environment

architectenbureau cepezed | 30. March 2015
Photo: Léon van Woerkom

Given that the organ issues ambitious guidelines for sustainability, its own quarters function as an edifying national and international example.

Photo: Léon van Woerkom

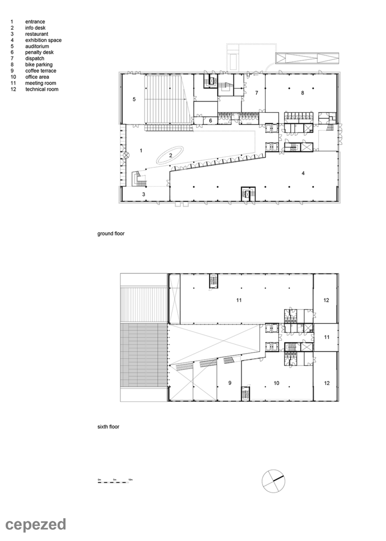
The building is characterized by a compact volume with stepped receding floor slabs under a rounded and largely transparent roof. A central atrium functions as a continuation of the adjacent square, which includes the large-scale historical buildings of the Royal Depot and the Sheds, which were recently renovated and now house offices, restaurants, design retail and cultural events.

Photo: Léon van Woerkom

The two lowest storeys contain a visitors’centre with ecological themes, an auditorium, a multimedia library, a conference centre and a restaurant. The offices are situated above the public areas from the third floor upwards and are suitable for many different types of workspace, due to the flexibility of their internal arrangement. On the third floor, there is also a laboratory in which Brussels Environment carries out trials and tests related to its work field. A prominently positioned, continuous cascade staircase dovetails with open galleries and encourages taking the stairs instead of the lift.

Photo: Léon van Woerkom

The new Brussels Environment is BREEAM-Excellent certified and also complies with all the norms applying to Passivbau. It has a relatively small façade surface and is well-insulated, in part due to the utilization of triple glazing in a thermalbreak façade system. To protect against warming up in the summer, the glass is strongly heat-resistant and is combined with external sun shades that react to the heat load. Individual ventilation facilities in the façades also prevent excessive rises in temperature in the summer.

Photo: Léon van Woerkom

A minimum amount of mechanical ventilation and concrete core activated floors connected to a geothermal pump in the ground also contribute to the building’s compliance with the passive building criteria. The atrium plays an important role in the installation concept, partly because the heat it captures is reused. It also makes a significant contribution to the transparency of the building. A large surface of solar panels is fully integrated in the façade.

Photo: Léon van Woerkom
Photo: Léon van Woerkom
Photo: Léon van Woerkom

PROJECT DATA

Project: Leefmilieu Brussel
Address: Havenlaan 86c 1000 Brussel (BE)
Client: Project T&T NV, Brussel (BE)
Architect: architectenbureau cepezed, Delft
Local Architect: Philippe Samyn and Partners architects & engineers, Brussel (BE)
Structural Engineering: Ingenieursbureau Smitwesterman, Gouda
Local Engineer: Ingenieursbureau Meijer, Edegem (BE)
Installation Techniques: Flow Transfer International, Brussel (BE)
Construction Physics and Acoustics: DGMR adviseurs voor bouw, industrie, verkeer, milieu en software, Arnhem
General Contractor: Van Laere NV, Zwijndrecht (BE)
Realization: 2014
Gross Floor Area: 19.690 m2
Photography: Léon van Woerkom

Other articles in this category