Hashim Sarkis Studios

Byblos Town Hall

7. June 2016

PROJECT DETAILS

Client

Municipality of Jbeil/Byblos

Architect
Hashim Sarkis Studios (HSS)
Hashim Sarkis, Sandra Frem (project coordinator), Boulos Douaihy, Wissam Chaaya , Pablo Roquero, Rola Idris, Helena Briones, Carla Saad, Sama El Saket, Jonathan A. Scelsa, Cynthia Gunadi, Penn Ruderman, Chris Johnson, Alex Mecattaf

Landscape
Nayla Al‐Akl

Contractor
Roger Stephan, Jack Chahla (site engineer)

Engineers
Isopak (Electromechanical and Structural)

Competition
2011

Completion of Building
April 2016 

Site Area
1,667 sm

Footprint Area
752 sm

Total Interior Area
2,437 sm

Building Height
14 meters

Photo: Wissam Chaaya

Byblos, one of the oldest continuously inhabited cities in the world and a World Heritage Site, has been growing outside the historic city bounds to the point where most of the city’s population now lives in its suburbs. Boasting a historic harbor, two crusader castles, several historic churches and mosques in addition to an extensive Phoenician, Hellenistic and Roman heritage, the city is the most visited tourist site in Lebanon. 

Photo: Wissam Chaaya

In an effort to re‐center the city, the new town hall site was chosen at the interchange of the north south highway that separates the city from its eastern suburbs, in a public park and near a tourist information area.

The building is broken down into three large blocks that span over the park, each housing a different component of the program, the gaps between them bring light into the park and the buildings. The park is maintained open to the public as well as the ground floor of the complex.

The three blocks are carried by the circulation cores on east side and a long wall on west side that acts as a noise barrier with the highway. 

Site Plan (Drawing: HSS)

To protect from noise and heat, the blocks are closed to the outside and clad with sand stone, the "official stone" of the city. The offices are open to the spaces between the blocks with the facades clad in aluminum louvers that turn horizontally to become pergolas over the park that weave between the blocks.

A future urban design scheme will include a pedestrian bridge over the highway to connect between both sides of the park and also between the older and newer parts of the city.

Photo: Wissam Chaaya
Photo: Wissam Chaaya

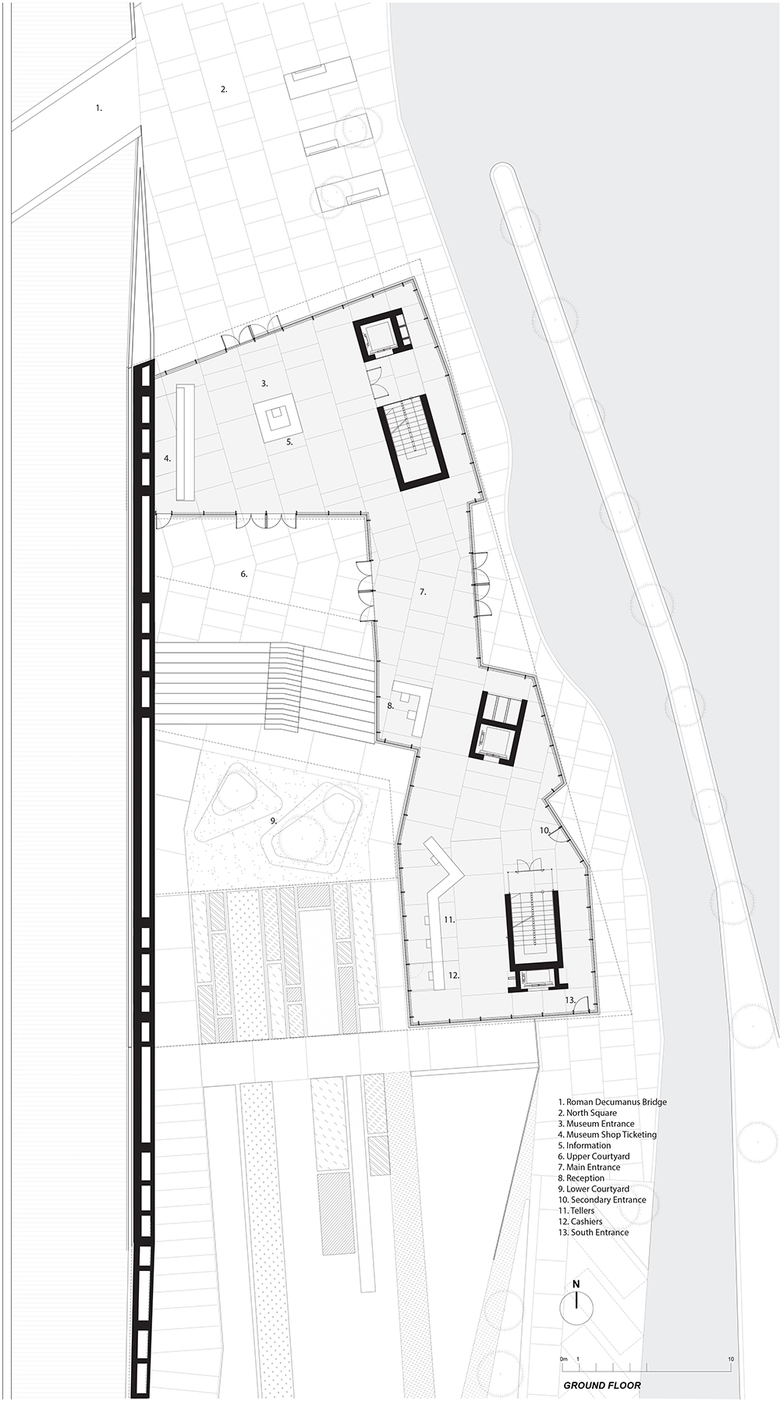
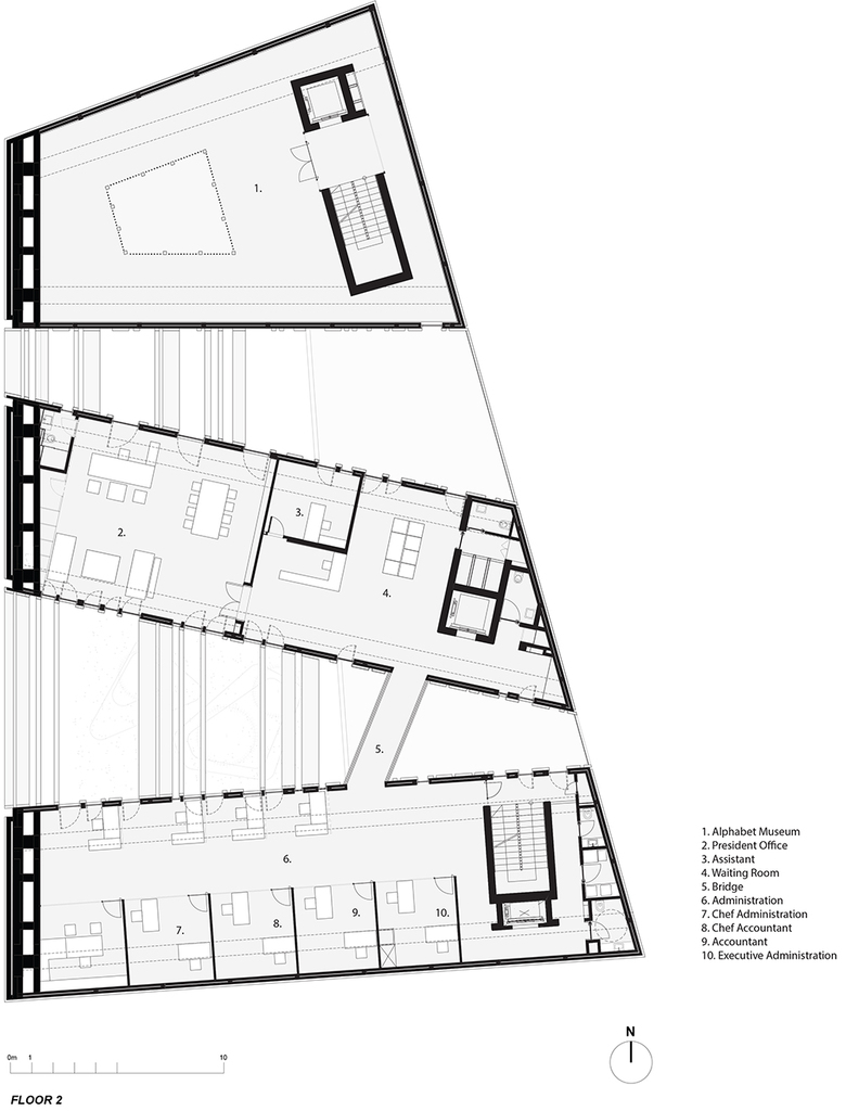
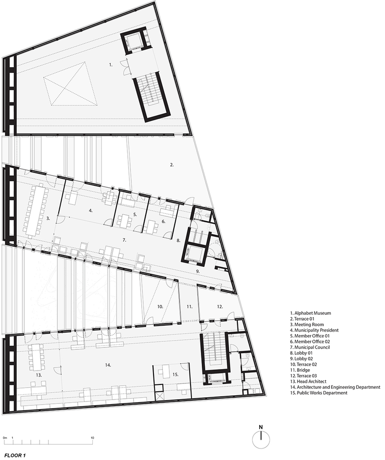
Each of the three volumes contains a component of the program, namely offices for three entities sharing the building: the municipal departments, the municipal council offices, and an interactive museum for the alphabet that also provides a multipurpose hall for the town. The volumes are at once separated from each other and connected at the ground level. The glass‐enclosed ground floor level combines the common spaces of the program: entrances, information, city cashier, cafeteria and exhibiĕon space.

Technical programs and the police department are located within the constructed base, at the level of the park.

Photo: Wissam Chaaya
Photo: Wissam Chaaya

The municipality is built out of reinforced concrete. Each volume’s structure consists of a core, two columns to the west embedded in the noise barrier and in the case of the two longer boxes, two additional columns. The spaces of the boxes are left open and clear for maximum flexibility.

In order to avoid the unpredictable patterns of sandstone and to express the monolithic nature of the stone pieces, the stones were cut into thin strips of 7 cms wide and a variety of lengths. They were then separated into four shades and assembled on the façade following a pixelated paĥern of yellow travertine.

On the inner face of the lobby, a mural representing a geometric abstraction of the Phoenician alphabet introduces one of different forms of expression between art and calligraphy that the building’s architecture hosts. 

Photo: Wissam Chaaya
Photo: Wissam Chaaya
Photo: Wissam Chaaya
Photo: Wissam Chaaya
Ground Floor Plan (Drawing: HSS)
Level 1 Floor Plan (Drawing: HSS)
Level 2 Floor Plan (Drawing: HSS)

PROJECT DETAILS

Client

Municipality of Jbeil/Byblos

Architect
Hashim Sarkis Studios (HSS)
Hashim Sarkis, Sandra Frem (project coordinator), Boulos Douaihy, Wissam Chaaya , Pablo Roquero, Rola Idris, Helena Briones, Carla Saad, Sama El Saket, Jonathan A. Scelsa, Cynthia Gunadi, Penn Ruderman, Chris Johnson, Alex Mecattaf

Landscape
Nayla Al‐Akl

Contractor
Roger Stephan, Jack Chahla (site engineer)

Engineers
Isopak (Electromechanical and Structural)

Competition
2011

Completion of Building
April 2016 

Site Area
1,667 sm

Footprint Area
752 sm

Total Interior Area
2,437 sm

Building Height
14 meters

Other articles in this category