Central Park Road Residence

studiofour | 1. November 2019
Photo: Shannon McGrath

In our client’s eyes, the value of this renovation lies not just in its function and the shelter it provides, but because we have been able to repurpose an existing home and conserve the heart and soul of the forgotten.

Project: Central Park Road Residence
Location: Melbourne, Australia
Architect: studiofour
Photo: Shannon McGrath

On arrival, the entry is now defined by an oversized eave that emphasizes the horizontality of the façade and strengthens the cohesiveness of the existing architectural form.  It has been punctured to allow substantial soft landscaping adjacent the entrance, as well as provide increased light into the interior of the heart of the home without compromising on privacy. 

Photo: Shannon McGrath

The horizontality of the architectural form was further strengthened by filling in vertical joints in brickwork and raking existing horizontal joint lines. The language of the exterior brickwork is carried inside, to form and define volumes. These walls are unadorned and honest. The interiors celebrate the beauty of imperfection. There are no embellishments, no overworked decoration.

Photo: Shannon McGrath

A key challenge was to balance our clients' desire to live in an open plan house that ensured a high level of interaction and communication but without the noise and distraction that a single large space can sometimes result in. In contrast to the modest and simple façade, on entering, spaces unfold and are layered upon each other. 

Photo: Shannon McGrath

Solid brick exterior walls carry inside to frame the heart of the home (Kitchen + Meals) and create interior portal openings which connect adjacent spaces (Dining, Living + Bar). The layering of these spaces was further strengthened by adding plate glass walls that intersected the solid walls. Whilst spaces were isolated acoustically, a controlled visual connection was promoted. 

Photo: Shannon McGrath

Further connections are made between the adjacent garden and the space around the house, providing a layering of landscape and surrounding built form. The home is light filled with fresh air and aspect, yet there is an inner truth and stillness to the spaces that produces calm and a certain mindfulness.

Photo: Shannon McGrath
Photo: Shannon McGrath
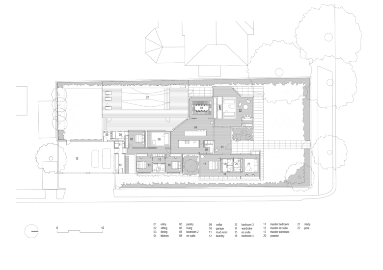
Drawing: studiofour
Photo: Shannon McGrath

Other articles in this category