Angel Rico Painceiras, Manuel Vazquez Muiño
C.I.C.A.
The building is a part of the technological park of Coruña University. This technological park is formed by another six buildings interconnected among them.
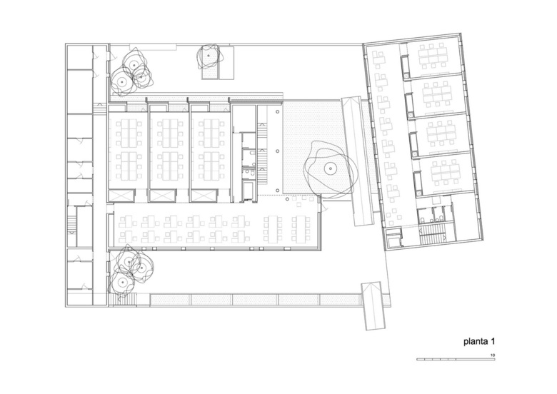
The plan for the Technological Park established that each building must have two volumes; one of them of four floors and the other of two. These two volumes will be divided by a pedestrian public space that will connect transversally all the buildings of the park.
Taking into consideration the volume derived from the regulations, our project is based on two simple excavation operations. The small volume allow us to create the pedestrian and cars entrances. The excavation of the bigger volume, conceived as a patio, allow us to have a visual relationship among the different parts of the building and a relationship with the public exterior space.
The entrance to the building takes place through a ramp with a slope contrary to that of the street. This ramp elevates the ground-floor level to allow the entrance of cars to the basement plant. The patio allows not only the aforementioned visual relationships but a good illumination and ventilation of the ground-floor. A crossing footbridge with a small slope guarantees the continuation of the pedestrian pathway.
On the conception of the building, the fundamental premises are sustainability, versatility, flexibility and the clarity of the itinerary.
Sustainable aspects of the work
- The roof level contains a field of solar panels.
- The residual cold air produced by the heating system is used for the refrigeration of the computer servers.
- Solar control, through a lattice of deployé and multi-layered glass.
- LED system of lightning.
- The patios introduce natural light even at the second basement.
- Vegetal treatment of these patios.
PROJECT DATA
Project: C.I.C.A.: Centrol de Investigaciones Cientificas Avanzadas da Universidade da Coruña / Scientific Investigations Advanced Center of the University of Coruña
Architects: Angel Rico Painceiras, Manuel Vazquez Muiño
Collaborators: Manuel Lopez Lamas, Ingrid Edo Bosch, Roberto Regatos Gomez, Carolo Losada Soto, Alberto Lopez Gomez, Jose Maria Sanchez Rosa
Site area: 5,512 sm
Building area: 1,688 sm









