Education Center for the University of Cordoba
Cubic form and zero gravity, the Vial-Norte UCO building is the result of the combination of massive volumes with light spaces.
Located in a trapezoid-shape plot, as part of Renfe 2 Masterplan – one of the urban extensions of Cordoba, (Spain) – the building seems dramatically weightless, highlighted by the emphasis on the contrast of the façades: glass and concrete.
The new education center blends in with its surrounding urban backdrop. The north façade, double-skin, and east and west façades are covered in in situ micro-concrete with large windows that allow natural daylight to shine in. The south façade shows a translucent aluminium materiality with driven voids of light that embodies the building's aspirations in the city's fabric.
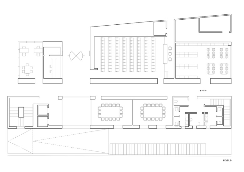
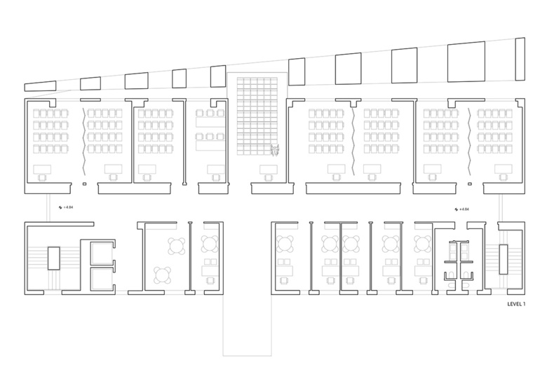
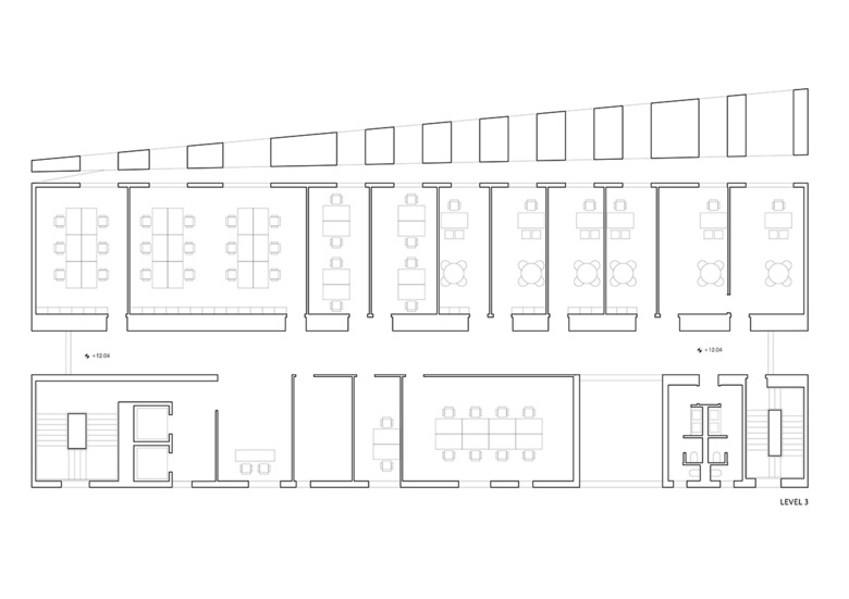
Resulting in a total gross floor area of approximately 5.448 m², the five-story building provides education programs while two underground floors provide parking and optimal storage.
Client
Cordoba University (UCO)
Architect
Rafael de La-Hoz
Managing Works
Rafael de La-Hoz and Clemente Lara de la Peñaq
Quantity Surveyor
Rafael García Santaella
Team RAFAEL DE LA-HOZ Arquitectos
Project Team: Hugo Berenguer, Belén Rivera, Fernando de la Fuente, Zaloa Mayor, Álvaro Rivero, Susanne Forner, Monika Kussewska, Laura Díaz, Silvia Villamor y Ángel Rolán.
Graphic design: Luis Muñoz and Daniel Roris
Models: Fernando Mont and Víctor Hugo Coronel
Construction company
UTE: INTERSA-FIRPROSA
Structural engineering
Pondio Ingenieros
M&E engineering
Herrero Ingenieros S.L.
Start-End Works
2011-2014







