Bucchieri Architects

Fairview Townhouse

John Hill, Bucchieri Architects | 25. August 2014
East elevation. Photo: © Scott Pease/Pease Photography

The neighborhood thrives on its proximity to University Circle, the cultural center of the city and home of Case Western Reserve, University Hospitals, and the Cleveland Museum of Art.  Little Italy was settled by stone craftsmen who came to work on the Lakeview Cemetery, establishing a tradition of artisanship which can still be found in the neighborhood today. Small family-run shops, restaurants and galleries occupy the storefronts on the ground floor of multistory residential buildings creating a dense urban fabric that encourages pedestrian traffic. The streets that branch off the main arteries, among them Fairview Avenue where the townhouse is sited, are lined with 2-to-3-story single-family residences on deep, narrow city lots with often a second house built on the rear of the property.

Front house, west elevation. Photo: © Scott Pease/Pease Photography

The Fairview townhouse fits into this compact, diverse context. The architect’s office studio is located in the neighborhood in a 1909 schoolhouse which the architect converted to offices, shops and artist studios. While the front house respects the alignment of residential fronts along the street, this townhouse occupies the back of the property and takes advantage of the slope leading up to the foot of the hill. The difference in height allows for unique views of the city and even Lake Erie beyond. Envisioned as an urban residence and a place for family gatherings, the design challenge was to balance the advantage of being close to services, work, friends, and family and the need for harmonious, serene spaces for living. Maintaining privacy is a priority in the design. Enclosed courtyards are the building blocks around which spaces are organized: a shared drive court separates the front and rear houses while a second courtyard, framed by the hillside, the tall windows of the rear townhouse’s living space, and a line of fencing and multi-stem deciduous trees, encloses the outdoor living space. Large windows on the southeast and southwest side of the residence capture views of the garden and hillside while the other facades have few select openings.

Southeast corner. Photo: © Scott Pease/Pease Photography

The landscape is left natural to counterbalance the taut and geometric presence of the house. The English ivy, Washington Hawthorne trees, and long buffalo grasses (which only require seasonal cutting) maintain the feel of an old yard. Sandstone from the existing foundations was salvaged in order to build a dry-stack retaining wall for a level yard area. Drilled piers stabilize the base of the hill. The visual noise of the surroundings is balanced by a monolithic, unified exterior of 1x4 horizontal Inland Red Cedar boards grouped in 4 foot by 4 foot panels. The cedar panels, which line the walls and soffits, are mounted onto batten strips forming a rain screen reminiscent of the lap siding used for exteriors throughout the neighborhood. Custom-designed, locally fabricated stainless steel windows follow the four foot module that underlies the entire design from exterior to interior and down to the scale of furniture. This measurement system controls the design and achieves visual clarity and elegance of proportion. The richness and refinement then lie in the materials and details.

West elevation. Photo: © Scott Pease/Pease Photography

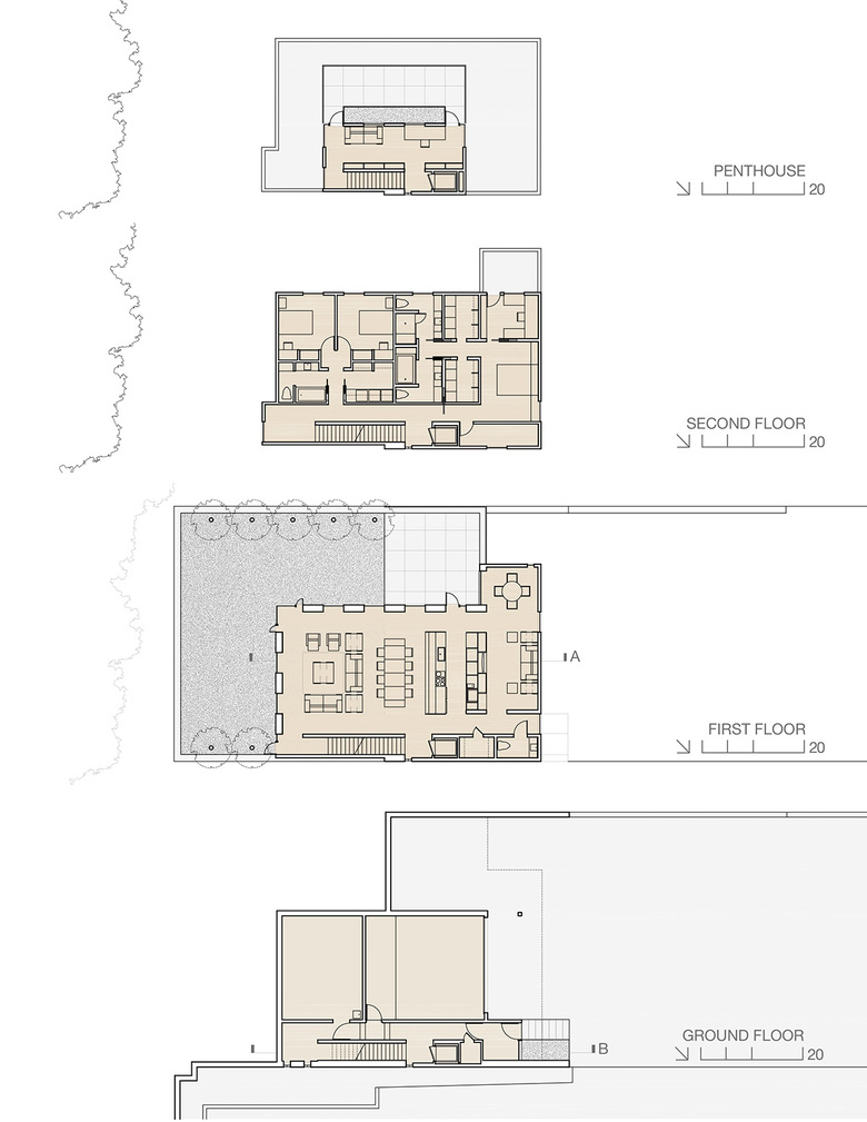
A small footprint produces a total of four floors, of which the ground level with the entrance, garage, and storage space is carved out of the slope of the hill. Above this, an open living level houses seating, dining, cooking, and entertainment areas whose architecture is a sculptural, expressive backdrop for living. Sunlight creates variations of light, shade and reflections on the white, matte interior surfaces. The deep reveals at the full height windows emphasize the mass of the enclosing walls. The warm, muted texture and the even vertical grain of the rift cut white oak ties together the floors, stairs, furniture, cabinets and accessories. The living and dining room furniture was custom designed and fabricated by the architect. The third floor, which includes a master suite and two bedrooms, features square windows framing views of the neighborhood.  A service spine is aligned with the fire-rated northeast exterior wall and includes an elevator and stairs that connect the floors in single runs. Composed of open treads, the stairs allow for light from the vertical strip of glass block on the northeast side to filter through the levels of the stairwell. At the top floor, a studio with access to a roof terrace occupies the most private area.

Living room from northeast corner. Photo: © Scott Pease/Pease Photography

Architect: Bucchieri Architects
Location: Cleveland, OH, USA
Designer: Stephen Bucchieri
Project Team Members: Stephen Bucchieri, Scott Neiswander, Ioana Lucia Andreianu
Structural Engineer: Leinweber Engineering, LTD
Mechanical & Electrical Engineer: TEC Engineering Inc.
Civil Engineer: EDP Geosciences
Area: 3,000 square feet
Year: 2012

Dining room. Photo: © Scott Pease/Pease Photography
Study to breakfast room. Photo: © Scott Pease/Pease Photography
View from breakfast room. Photo: © Scott Pease/Pease Photography
Floor plans. Drawing: Bucchieri Architects
Site plan and building sections. Drawing: Bucchieri Architects

Other articles in this category