KCAP and Felixx

Jaanila Country

KCAP and Felixx | 23. October 2014
Yaanila Square. All images courtesy of KCAP and Felixx

Jaanila Country was chosen as first prize winner out of a selection of 13 nominated projects. The regional Habitat contest is hosted by the Leningrad Union of Building Organisations and has been held for the first time. It aims to honor new developments for their contribution to the public environment. The award ceremony took place in August  in St. Petersburg during the celebration of Russia’s national builder’s day.

Bird's Eye

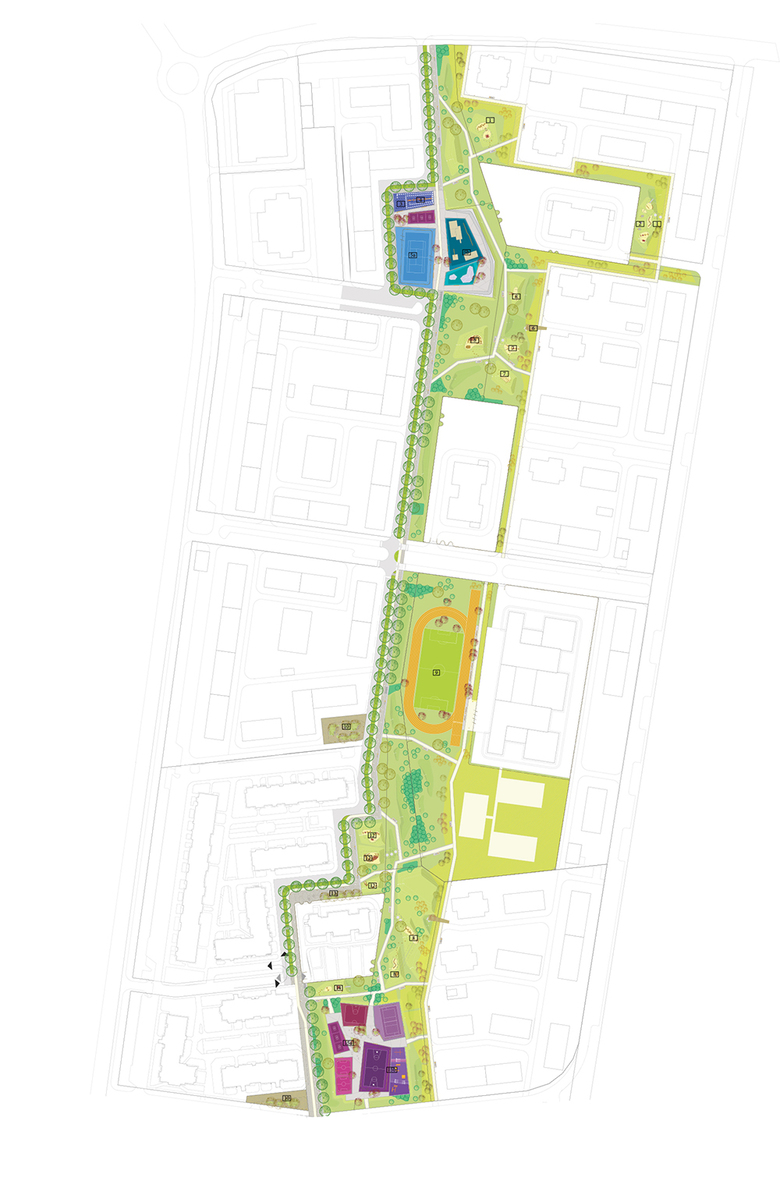
Jaanila Country is a 42-hectare residential area for 9,000 new residents, commissioned by LST Development. Construction is estimated to start in the beginning of 2015.

Boulevard

"Jaanila Country will not be like the many large scale developments in Russia. It is based on creating a specific interaction between built environment and green," says Ruurd Gietema, urban planner and partner of KCAP. "The concept is rooted in a European town planning tradition of large parks amid residential and working neighborhoods," he continues.

Flower Path

The required facilities of all private blocks are combined into a public park for the whole district. All neighborhoods adjoin this central green space, establishing a public realm that acts on different scale levels. The park anchors the new district in the surrounding forest landscape, rooting urban functions in a natural environment. As a cohesive green core, this provides a shared identity to all surrounding neighborhoods.

Park

"The edges are treated as interfaces, establishing strong connections between the neighborhoods and the park," states Michiel van Driessche, landscape architect and partner of Felixx. "On the western side as a formal boulevard, accompanied by evergreen pine trees, creating a lasting experience in every season. On the eastern side as an informal walkway, planted with flowering shrubs and trees, creating a continually changing image. Between these two sides, a network of paths ensures that the park is part of the daily walking routes of all residents."

School

To activate the park, the functions and facilities which are normally located within the block are centralized. Sports facilities are combined into public sport clusters. Together with the kindergartens they create neighborhood destinations in the park. Playing areas are integrated in a 3-dimensional landscape. Grass hills with playgrounds alternate with depressions, which may temporarily fill with water. Specially designed squares along the boulevard in the west, and wooden piers along the flower path in the east, connect the park to the neighborhoods. The aim of the park is to create a public space which can be used during the whole year, offering an enchanting realm in every season.

Sportsfield
Winter
Plan Drawing
Aerial Drawing © KCAP

Other articles in this category