Biasol: Design Studio

Jury

Biasol: Design Studio | 19. November 2014
Photo: Martina Gemmola

As an interior design project, Jury presented several unique challenges to our studio: we wanted to respect its dark past as a prison, and we also wanted to breathe new life into the cafe for its patrons to enjoy.

Photo: Martina Gemmola

The theme of irreverence led us to play with ideas – ideas that created a contrast between dark bluestone walls and a palette of bright colors and blond timbers. Along with these ideas of color, we used a mix of raw materials, plywood, structural timbers and concrete that allowed us to form a geometric color pattern within the feature wall of Jury. This structure created a playful effect, one that brought the site to life and allowed it to move on from its dark past, as well as embrace a sense of fun for the future.

Photo: Martina Gemmola

We softened the space further by adding greenery from Pop Plant; we also designed bespoke tables and stools that are, again, all made from natural materials.

The result is a cafe that even Chopper Read would have frequented during his time in 'H' division.

Photo: Martina Gemmola

Project Facts

Designer: Biasol: Design Studio
Jean-Pierre Biasol
Completion: March 2014
Area: 47sqm
Furniture & Lighting:
Tables and Stools – Custom crafted.
Pendants from Nud Collection
Bulbs from Plumen
Photographer: Martina Gemmola

Photo: Martina Gemmola
Photo: Martina Gemmola
Photo: Martina Gemmola
Photo: Martina Gemmola
Photo: Martina Gemmola
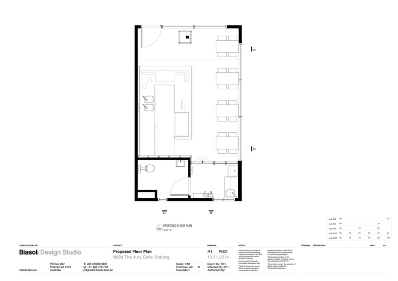
Floor plan. Drawing: Biasol: Design Studio

Other articles in this category