Lundgaard & Tranberg Architects
Kannikegården
Kannikegården in Ribe, Denmark, is one of five finalists for the 2017 European Union Prize for Contemporary Architecture – Mies van der Rohe Award. The winner will be announced in Brussels on May 12th.
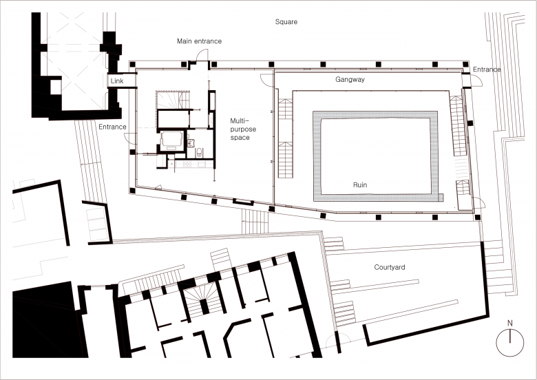
Kannikegården in Ribe, Denmark’s best preserved medieval city, is on the main square, just across the city cathedral. The simple brick clad volume hovers above the city floor to expose an open ground floor with a 1000-year-old brick ruin integrated within. The ruin as well as the modern cladding convey stories of cultural and historical heritage.
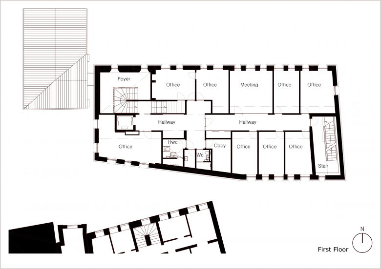
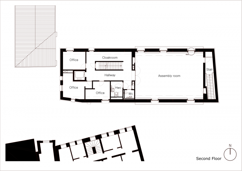
The building houses functions for the parochial church council and the staff at the church. At the same time, it functions as a hospitable setting for public events for the town’s citizens, such as talks, concerts and film screenings.
The project task was faced with a special challenge: Ancient discoveries, telling us about Danish history over the past thousand years, have been found on the building site. The archaeological excavations have uncovered remains of Denmark’s oldest christian cemetery from 800 A.D., originating from the transition period from the Viking to the Christian ages. Most visible however, is a listed brick ruin from the Augus-tine Canon’s monastery dating back to the 1100s. The ruin is integrated into an exhibition space de-signed to communicate the many cultural historic layers of the location.
The building consists of a single, oblong volume with a pitched roof, supported by pillars above the preserved archaeological findings. The length of the building is located along the square with a scale and roof pitch following the neighbouring buildings on the square, thus adapting to the surrounding city scale. The archetypical shape of the volume is given a sculptural crookedness towards the south, to bring more light and air towards the neighbour buildings behind. Here, an intimate green courtyard is established along the streets Sønderportsgade and Rykind.
The project draws several threads to the place of cultural and historical heritage, where the past meets the present. It is an interesting symbolic point that the brick ruin, by virtue of its original function as a refectory of the ancient monastery, is a distant ancestor of the new building. It's also interesting that the brick ruin and the new building Kannikegården tell a story of the use of masonry through a period of 1000 years. The Danish Culture Agency considers the ruin to be the best-preserved building fragment among the oldest brick-stone buildings, and is therefore regarded as a protected monument.
The main volume consists of a simple steel frame enveloped by lightweight prefabricated façade ele-ments. The volume rests on in-situ cast columns that grow out from an in-situ concrete base on the ground floor. The base merges the various levels around the building with supporting walls, and frames the ruin space approx. 2,5 m under the main square level.
The upper volume is covered with specially developed façade tiles in reddish brown shades comparable to the city’s and the region’s characteristic, brick houses - but as a more contemporary interpretation due to the hovering tectonics of the building. The shingles are hung in an overlapping fashion, like fish scales, and frame the windows of the interior spaces.
The lower section appears with glass facades, and ensures an open cross section through the building exposing the ruin space to the surrounding urban context. The transparent façade is interrupted by pivoting oak planks that create exterior sun shading as well as human size viewing spaces into the building.
Photos of the jury visiting Kannikegården, courtesy of the EU Prize for Contemporary Architecture - Mies van der Rohe Award Facebook page:
Related articles
-
-
-
Isabel Zumtobel: 'We Believe in the Power of Design to Change the Future for the Better'
World-Architects Editors | 18.11.2025














