BBGK Architekci, Jerzy Kalina, Maksa
Katyn Museum
The Katyn Museum in Warsaw, Poland, is one of five finalists for the 2017 European Union Prize for Contemporary Architecture – Mies van der Rohe Award. The winner will be announced in Brussels on May 12th.
Katyn Museum is there to commemorate a painful episode of Polish history which took place during the World War II when over twenty thousand Polish military officers and state officials were brutally murdered by the Soviet Secret Police.
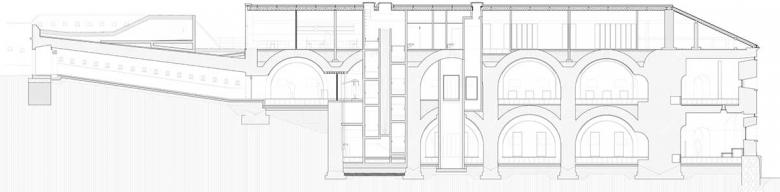
Katyn Museum lies the southern part of the fort - the Warsaw Citadel consisting of three historical buildings. The whole foundation is a park with symbolic Katyn Forest in the centre of it. The entrance is located at Nowomiejska Gate, the extension of the Old Town route. The museum exhibition has been designed on two levels of Kaponiere - old artillery. The third building is the arcade gunrest building, which consists of five glassed arcades which locate plaques with the names of the murdered officers.
Fifteen plaques commemorating the 21,768 victims located in the historic gunrest raises questions about the meaning of the concepts of evil, good, forgiveness. At this point, we have consciously given the architecture powerful expression. The gap between high 12 meters walls slitting the Citadel shaft leads us in two directions - down to the gunrest arcades where the plaques with the names of the victims are; and up, opening the perspective of the sky. On the axis of the stairs among the trees stands an oak cross - the epilogue of our narrative about Katyn.
Stained concrete also becomes a mean of architectural expression, wherever exhibition narrative demands it; personal belongings, such as letters, elements of ammunition of the victims were used to leave prints on the concrete. The history of Katyn in its cruelty and evil immensity is much too difficult to comprehend.
Photos of the jury visiting the Katyn Museum, courtesy of the EU Prize for Contemporary Architecture - Mies van der Rohe Award Facebook page:
Related articles
-
-
-
Isabel Zumtobel: 'We Believe in the Power of Design to Change the Future for the Better'
World-Architects Editors | 18.11.2025











