Wulff + Guirnaldos Arquitectos
Legerén Pantheon
In the Historic Cemetery of St. Joseph of Granada, Spain, a pantheon is built for a family. The emotion at the time of the disappearance of a beloved one, the farewell and the evocative meditation of memory through the sensory experience are key elements of this work.
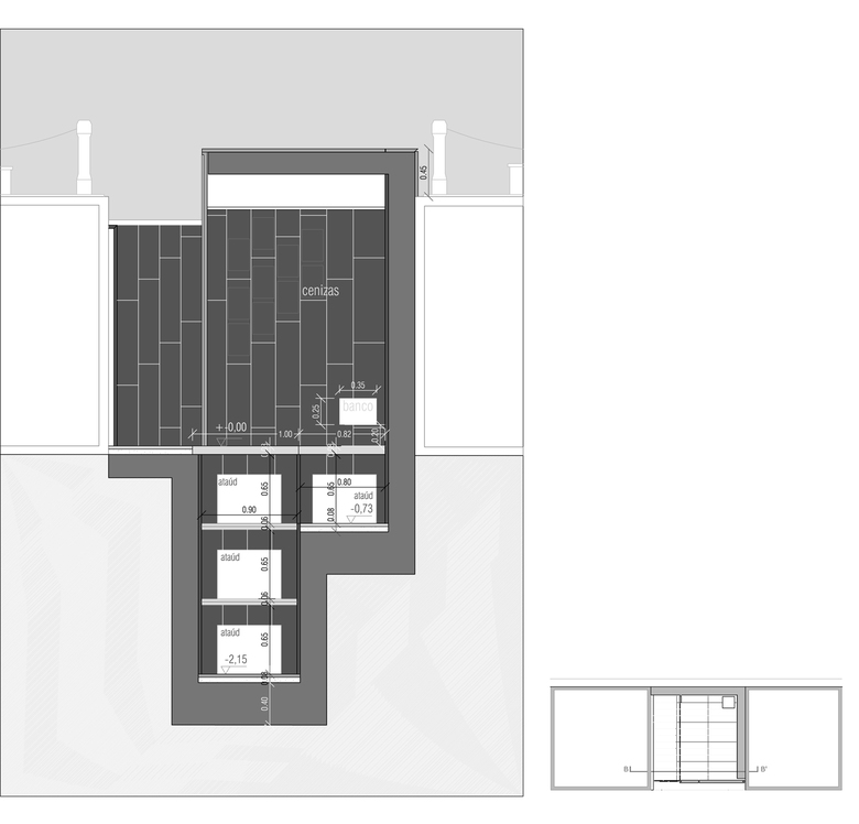
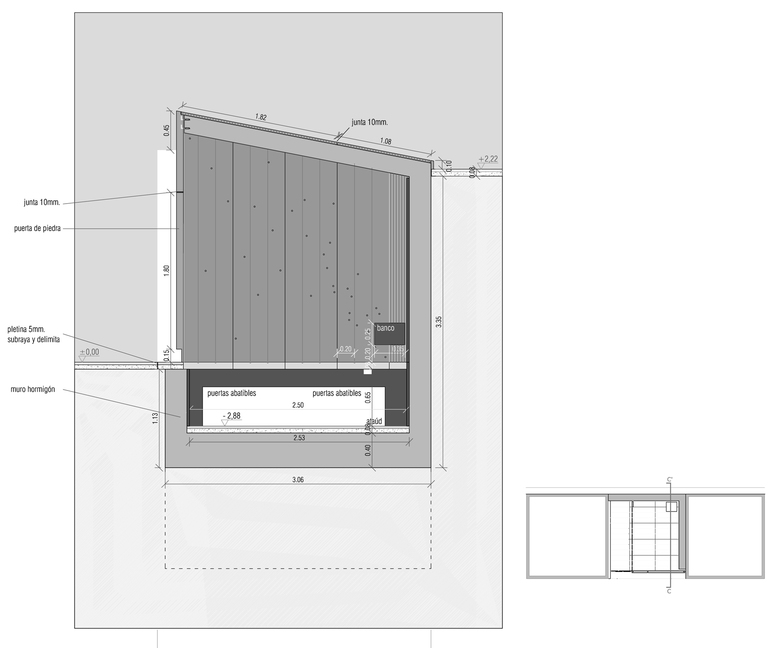
The Pantheon is a simple volume of ribbed stone, displaced from existing buildings in its front and side elevations. The difference in height between the front access and the elevated walkway along the Garden of Ashes at the rear allows the construction of a space for meditation and rest where the natural light qualifies the materiality of the interior space.
At the top level, the roof is slightly tilted from the pavement of the rear garden to become another elevation of the volume. It sets out a contemporary dialogue with the historic context of the cemetery introducing its quiet presence to the Garden of Ashes.
The volume of the Pantheon is emphasized from the adjacent building by the void created for the lateral entrance. In the background of this space, an ivy slowly grows over a sculpture.
The doors which open to this space are made of smooth black metal traversed with natural light. This opening fades the presence of the side elevation, opening the interior space to richer relations with the external context.
The front of the Pantheon is built by four striated stone doors of different proportions with open joints between them. These doors will only be open for special occasions.
The interior is empty. Only meditation and silence.The light filtered through the fissures between the stone doors slides over the black granite rough walls and the white pavement, beneath which lie the graves.
Several scattered natural light stars are filtered across the dark side doors, and transform the inner space throughout daytime and over the seasons.
- Federico Wulff, Dr. Arquitecto/ PhD Architect
Wulff + Guirnaldos arquitectos











