Mar Mediterráneo 34
Mexico City is a historical setting with an enormous cultural and architectural heritage protected in its magical neighborhoods. Tacuba is one of them, located northwest to the downtown. This neighborhood has undergone social and urban transformations that have lasted to this day and where vestiges forged at different times can be found.
Location: Tacuba, Mexico City
Development: Top Project Multiplex / Efraín Hernández
Architect: Inca Hernández
Interior design: Ana Ximena García, Inca Hernández, Raíz Mx, Adrián González (Mercado de Chacharitas)
Collaborators: Gabriela Llovera Arciniegas, Luis Enrique Vargas
Structural engineering: Javier Soria
Area: 620 m2
Photography: João Morgado - Architecture Photography
At the end of the 19th century and the beginning of the 20th century, Tacuba became one of the wealthiest areas of the city with large country houses, which over time and different political changes were abandoned and many were collapsed. However, among these vestiges the house of “Mar Mediterraneo 34” remained.
Built in 1910 through an eclectic French style belonging to the Porfiriato era, it currently holds historical value by the National Institute of Fine Arts and the National Institute of Anthropology and History. The project started with the idea of giving a new life to a house designed in two volumes, where the first incorporates the main facade while the second has a view to the main patio, although both were in advanced deterioration and the second volume was in ruins.
Based on these characteristics, the restoration and intervention of the original elements of the era are implemented, where the spaces are regenerated with a new materiality, and the multiple artistic and artisanal elements are recovered from the main facade such as the carved quarry from the balconies and lintels, the iron railings, the large windows and the glass roof tiles, intending to rehabilitate the new urban image. The interior is reconstructed as a reinterpretation of the past through a contemporary perspective, where a volume is raised up framing the sky in the existing main patio and portrays the arrangement of the old portals as a sequence of light and shadow; this is how these openings rise intermittently from the ground floor in double height and become a solid element of introspective architecture.
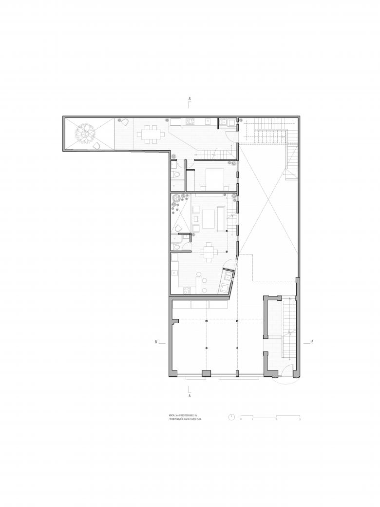
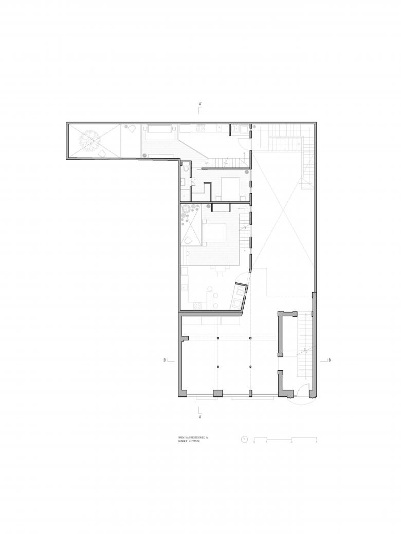
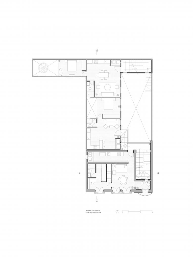
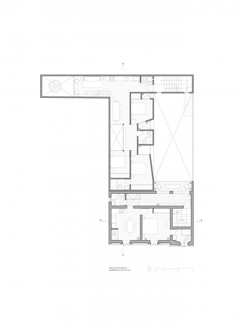
The project intends to fuse what prevails and what is reborn through a linear connection between two eras; this connection is also reflected at the entrance by a volcanic stone baseboard which surrounds the entire ground floor and functions as the foundation to lift what has resurfaced. The restored house has three levels and seven apartments that adapt to different flexible spaces (loft, studio, familiar apartment and penthouse). They interact by views to the historical elements in the main patio and two additional courtyards of lesser proportion with a tree surrounded by a set of lattices that allow the entrance of natural light keeping an autochthonous essence.
The goal of the intervention is to generate a legacy that encourages the transformation of Tacuba to enhance and rescue its heritage value, by taking advantage of spaces in a sustainable way to give life to the magical neighborhood.




















