Naturalis Biodiversity Center Leiden

Neutelings Riedijk | 29. August 2019
Photo: Scagliola Brakkee Fotografie
Project: Naturalis Biodiversity Center Leiden, 2019
Location: Darwinweg 2, Leiden, the Netherlands
Client: Naturalis Biodiversity Center
Architectural Design: Neutelings Riedijk Architecten
  • Design Team: Michiel Riedijk, Willem Jan Neutelings, Frank Beelen, Kenny Tang, Guillem Colomer Fontanet, Jolien Van Bever, Inés Escauriaza Otazua, Marie Brabcová, Cynthia Deckers
Architectural Engineering: ABT BV Ingenieursbureau
Structural Engineering: Aronsohn Raadgevende Ingenieurs
Installation Design: Huisman en van Muijen
Building Physics: DGMR Raadgevende Ingenieurs
General Contractor: J.P. van Eesteren
Installation Contractor: IC ULC-Kuijpers
Interior Designer: Neutelings Riedijk Architecten (general public areas), Hollandse Nieuwe (offices)
Designers of Artworks: Iris van Herpen, Studio Tord Boontje
Urbanist: Studio Hartzema
Cost Calculation: IGG / Bointon de Groot 
Landscape Architect: H+N+S, Amersfoort
Photo: Scagliola Brakkee Fotografie

The number of visitors increased rapidly to 400,000 per year. The new future-proof Naturalis brings the growing collection of 42 million objects together (top five in the world). Its new state of the art facilities accommodate more than two hundred researchers whose studies are at the center of attention, contributing solutions to global issues including climate change, the decline of biodiversity on earth, food supply and water quality. The Naturalis facilities and the collection enable to contribute solutions at the highest level. At the same time the new museum offers the chance to show the public the wealth and beauty of nature.

Photo: Scagliola Brakkee Fotografie

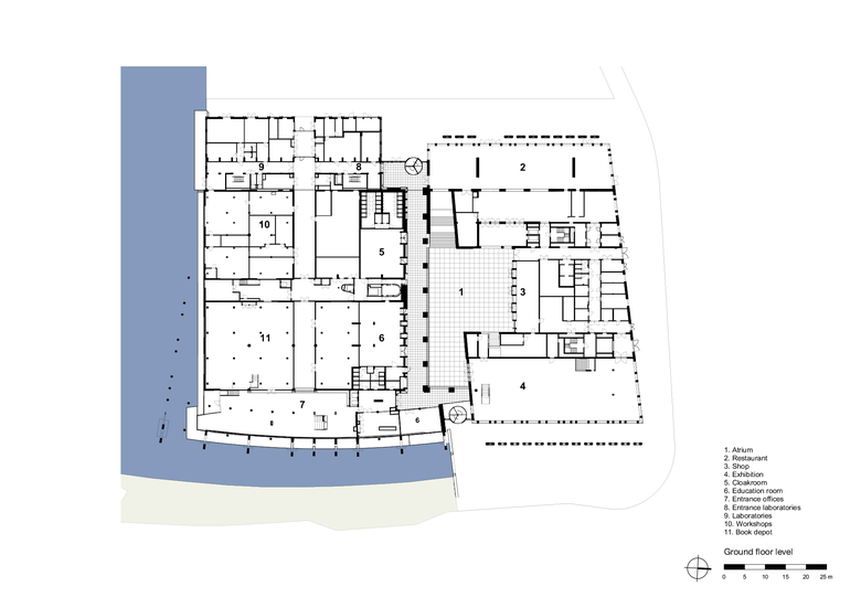
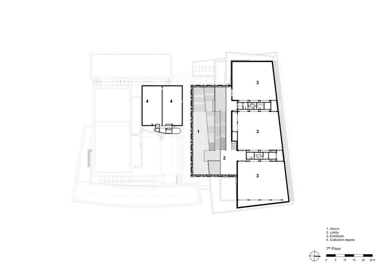
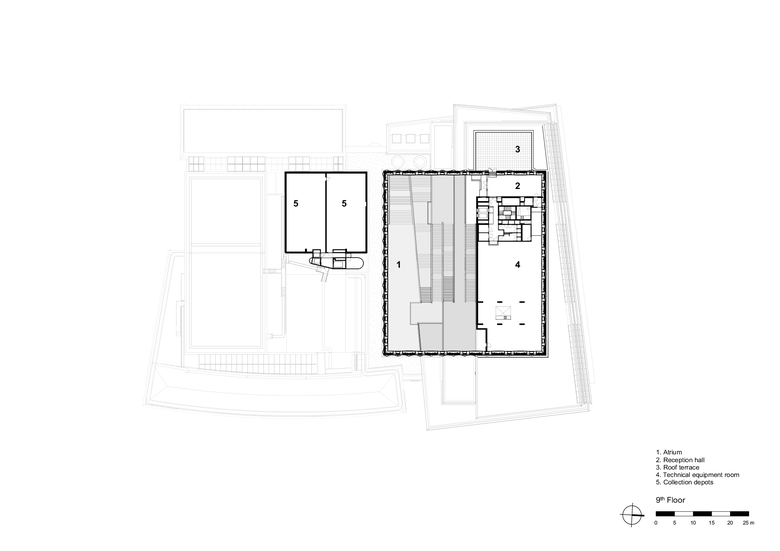
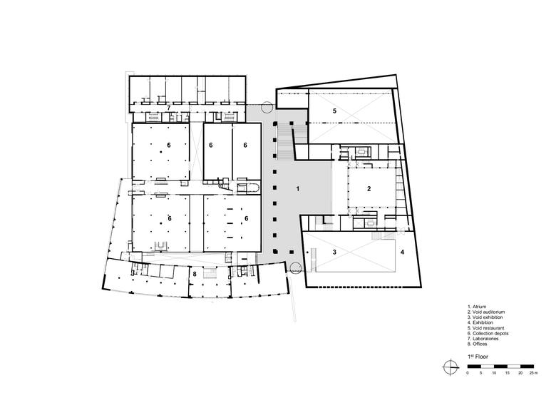
The institute’s new design forms a sustainable ensemble of existing buildings and new-build, with each activity housed in a specific form. The central atrium connects the various parts of the institute: the existing offices and depots with the newly built museum and laboratories. The design of the atrium consists of a three-dimensional concrete structure in the form of interlocking molecules as a lace of ovals, triangles and hexagons. The filtered light that enters through the circular windows as a "glass crown" where scientists, staff, students and families meet, reinforcing the monumentality of the space.

Photo: Scagliola Brakkee Fotografie

Public functions such as the restaurant, the shop and the exhibition hall can be found on the ground floor where passers-by can catch sight of the examinations of the last whales washed ashore. The main staircase leading up to exhibitions resembles a mountain path, becoming narrower at the top with enough space to welcome Trix, the sixty-six million years old T-Rex which has been given pride of place in the Dino Era gallery.

Photo: Scagliola Brakkee Fotografie

The exterior of exhibition halls with stone blocks in horizontal layers mimics a geological structure. Its travertine variety of stone used has developed natural crystals over the span of eons, creating a beautiful sparkle. The layers of stones are interrupted by friezes of white, concrete elements designed by a famous Dutch fashion designer Iris van Herpen. Invited by Neutelings Riedijk Architects, she designed a total of 263 panels, inspired by the natural shapes of the collection which seem to be smooth as silk, thanks to a special technique developed for Naturalis. Such a resemblance to fabric is a nod to the innovative dresses designed by Van Herpen for celebrities like Cate Blanchett, Beyoncé and Lady Gaga.

Photo: Scagliola Brakkee Fotografie

Inside the museum, Dutch designer Tord Boontje, known for his lighting, furniture and fabrics with exquisite floral and animal motifs, shows almost 100 striking and colorful wall panels. They are visual stories that blend photography and drawing to reveal the wonders of the natural world.

Photo: Scagliola Brakkee Fotografie

The project covers a total of around 38,000 m2 of which 18,000 m2 of renovation and 20,000 m2 of new construction.

Iris van Herpen artwork (Photo: Scagliola Brakkee Fotografie)
Studio Tord Boontje artwork (Photo: Scagliola Brakkee Fotografie)
Drawing: Neutelings Riedijk Architecten
Drawing: Neutelings Riedijk Architecten
Drawing: Neutelings Riedijk Architecten
Drawing: Neutelings Riedijk Architecten
Drawing: Neutelings Riedijk Architecten
Drawing: Neutelings Riedijk Architecten
Drawing: Neutelings Riedijk Architecten
Drawing: Neutelings Riedijk Architecten
Drawing: Neutelings Riedijk Architecten

Other articles in this category