DARK Arkitekter AS

New Oslo Skate Hall: A Playground for Grown-ups

Ulf Meyer | 10. February 2017

PROJECT DETAILS

Client

City of Oslo

Location
Stavangergata 28, Oslo, Norway

Architect
DARK Arkitekter AS

Landscape Architect
Rambøll

Skateboard Elements
Glifberg+Lykke/IOU Ramps

Completion
January of 2017

West façade (Photo: Finn Ståle Felberg/Kultur- og idrettsbygg Oslo KF)

To watch grown men — complete with facial hair and funny hats — on skateboards is a fun thing that a new building in Oslo, Norway’s capital, celebrates architecturally. It is the first indoor hall for skateboarding, the sport that was banned in this northern country between 1978 and 1989 — supposedly because it was “too dangerous.” The all-new Oslo Skatehall makes up for this long break: It caters to all sub-types of the sport — street, bowl and vert all under one roof. While it is a meeting place for all skaters, it also meets the demands for competitions, fulfilling all international standards. 

East façade (Photo: Lars Gartå/DARK)

Architecturally, the design concept is rooted in “the elements and movement of skateboarding,” according to local architectural office Dark Arkitekter. This does not mean curved lines or swirls. Rather, the building is composed of two interlocking volumes, one light and one dark. Both elements cantilever and are inclined in opposite directions to the topography. Oslo’s skateboard venue is raised in the east and west, creating a cluster of diagonal lines. The cantilevers at the two short sides of the box have broad borders made of golden metal sheeting. They accentuate the building’s form and frame large glass facades that visually connect inside and outside.

Main entrance on the west (Photo: Finn Ståle Felberg/Kultur- og idrettsbygg Oslo KF)

The idea was to allow viewers even from the outside to follow the action inside. An even better view can be obtained from the observer’s café. During the short Norwegian summers, the café opens up to the outside terrace, which in turn is part of the large outdoor recreational area in the Voldsløkka district. A concrete amphitheatre is set into the hillside and the whole Skatepark connects the levels of the terrain, linking the concrete park at the base to a walking path on higher terrain.

Interior with half-pipe (Photo: Lars Gartå/DARK)

The lines of the building are echoed outside. The landscape design (by Rambøll Landscape Architects) responds to the architectural design well. The interaction of the building with the outdoor venues and park is “symbolic of the interaction between different generations of users, both performers and spectators,” according to DARK Arkitekter. The indoor skating area is 1,430 square meters and the outdoor facility is another 600 square meters. The hall also offers a media room, where athletes can record their performances, as well as a café, wardrobes and mezzanine for spectators. 

Interior with mezzanine beyond (Photo: Finn Ståle Felberg/Kultur- og idrettsbygg Oslo KF)

Facades are of perforated metal, emphasizing the contrast of closed wall sections and glazed areas at the short ends of the building. The cantilevers create a shelter over the entrance and outdoor seating area. Perforated aluminum sheeting in dark and light grey covers the facades, ornamented with a pattern of Morse code symbols. These are a transcription of the 1978 law forbidding the use, sale and advertising of skateboards. More of these code-symbols are used in the café and service areas, where the patterns convey slang terms for the tricks used by the skaters. At night, when the hall becomes busy, some thin lines across the elevations light up to accentuate the buildings shape(s). The structure of the hall is rather generic and composed of steel columns and trusses that carry corrugated metal sheets. 

Perforated aluminum façade (Photo: Finn Ståle Felberg/Kultur- og idrettsbygg Oslo KF)

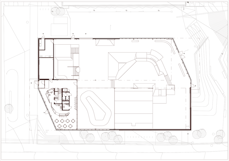
The layout of Skatehall is easy to read: In plan the hall resembles a rectangular box with the two opposite corners cut off. The main entrance in the west leads past the lobby and café to the great two-story hall. The substructure of the skating bowls on the upper floor, completely made of wood, create a beautifully strange, mushroom-like underside with organic forms. The construction details were left visible and the materials are “raw.” This is the best example in Oslo’s new Skatehall of a skating motif turned architecture. 

Underside of skating bowl (Photo: Lars Gartå/DARK)

All structural elements can also be viewed from underneath. Still, the main skating is on the lower level. The high ceiling gives plenty of space for all the custom-built skating elements. Spectators can follow the action from a viewing gallery that spans the entire length of the hall. To see their own action on-screen, skaters and their fans can edit films in the media room to show them flying through the air. With the new Oslo Skatehall, Norway’s skateboarding scene just made a big — yes — jump.

"Grown men with funny hats" (Photo: Finn Ståle Felberg/Kultur- og idrettsbygg Oslo KF)
Ground floor plan (Drawing: DARK Arkitekter)
Building sections (Drawing: DARK Arkitekter)

PROJECT DETAILS

Client

City of Oslo

Location
Stavangergata 28, Oslo, Norway

Architect
DARK Arkitekter AS

Landscape Architect
Rambøll

Skateboard Elements
Glifberg+Lykke/IOU Ramps

Completion
January of 2017

Other articles in this category