Nelson Resende
Office Building in Arada
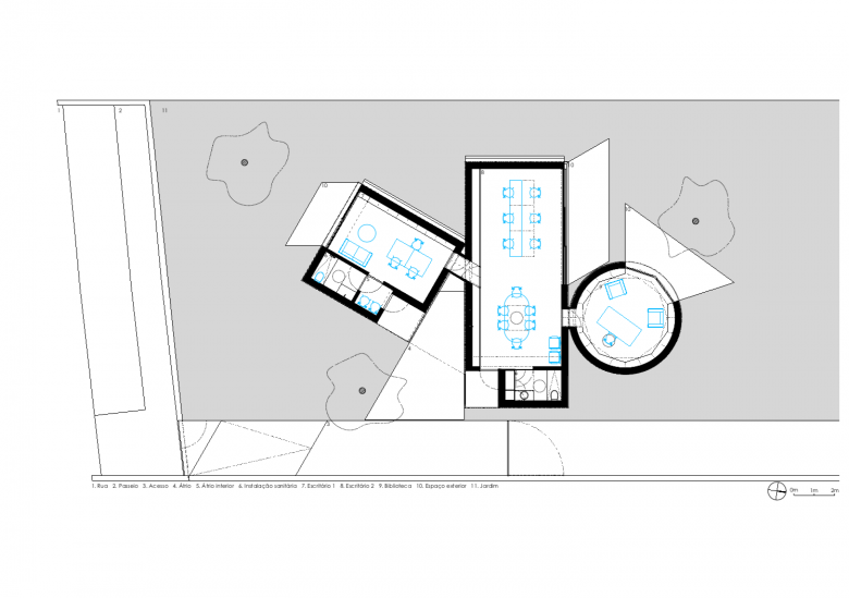
The building results from the need to create two offices, with possible autonomous use, but allowing an internal connection, so considering the possible merging of the two spaces.
Project: Office Building in Arada, 2017
Location: Rua da Nogueira, Arada, Ovar, Portugal
Client: Private
Architect: Nelson Resende
Structures: Sandra Leite
Photography: João Morgado
Built Area: 120 m2
The construction is located on level ground, at a height of about one meter above the height of the street, and is located in an environment of dispersed buildings with a strong presence of agricultural activity. The choice of site is therefore not thoughtless.
Although the program is of a commercial nature, the need for decontamination — back to the essence, a kind of purity that allows, without initial affections, to think, conceive and produce new spaces — conditioned the choice that, unlike most service spaces, it is not located in a more urbanized center.
There is, therefore, a conscious detachment that compensates for the increasingly frenetic pace at which things have to be thought and produced. The building is the result of the juxtaposition of a series of pure, tamed volumes, linked by necessity, but assuming their own identities.
The result seeks, however, to be more than a sum: an idea of formulation that exposes the crudeness of the essence as a possible way; the honesty of the simple forms in a game that emphasizes the dynamism, by the different rotation of the volumes, its different altimetry and solar exposition; the creation of an object of easy apprehension and simultaneously of insinuated complexity; the games of light/shadow that are exposed in the volumetric formulation but reserved in the functional connection to the surroundings.
The natural surroundings are a permanent mutation scenario, resulting from the agricultural cycles, the seasons, the climatic conditions of each season and the success of the tillage that proliferates. The building, which is immutable, is shaped much more slowly, through its exposure to the weather conditions that, along with longevity, influence its appearance.
Moreover, this immutability of the building before an environment exposes the building in ways that are not controlled: the forms gain an apparent importance before a nature that is transfigured when, year after year, they appear with this constancy.
The apparent lightness of the gesture is contrary to the resistance of the work in time, which in itself also shows a certain tension. The work nevertheless seems to have resulted from a sudden act, little reflected. In fact, this simplicity results from a successive detachment of artifacts used more commonly in other circumstances, and is therefore the result of a long process of maturation and reflection.
Related articles
-
-
'Just Another Fake' – Montemor-o-Novo Studio by Ai Weiwei
Eduard Kögel, Ai Weiwei | 19.05.2025 -











