Paloma

CUMULUS | 19. February 2019
Photo: Andrei Mărgulescu
Project: Paloma, 2017
Location: Soldat Gheorghe Matac Street, Bucharest, Romania
Architect: CUMULUS, Bucharest
Project Team: Liviu Zăgan, Costin Beekman, Alexandra Nicolau
Built Area: 845 m2
Photo: Andrei Mărgulescu

The challenging requirements of the context led us to design the structure and escape paths towards the outer sides of the building, taking full advantage of the plot’s dimensions. We aimed to emphasize the building’s height, concealing its proportions by dividing the façade into modules. The rhythm of the cell grid pattern creates a dynamic continuous mesh, without indicating the height of each floor. As a result, the cells become sun protected private niches.

Photo: Andrei Mărgulescu

The façade becomes a belvedere, an inhabited space through the exterior staircase that embraces the building. The gallery culminates with a larger open terrace that offers extensive views of the city. All the fragmented views collected along the route are pieced together like a puzzle in this complete panorama.

Photo: Andrei Mărgulescu

We attempted to solve the issue of poor illumination on the site by introducing a filter: color. Color can obturate, camouflage or even transform the exterior.

Photo: Andrei Mărgulescu

On the other hand, the plot is located between two streets of different importance. In this situation, “front” and “back” become relative terms. The cardinal orientation of this tall and narrow building is justified by the upper terrace that acts as a periscope. The Paloma building becomes a landmark for the area.

Photo: Andrei Mărgulescu
Photo: Andrei Mărgulescu
Photo: Andrei Mărgulescu
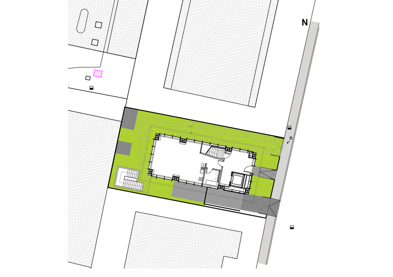
Site Plan (Drawing: CUMULUS)
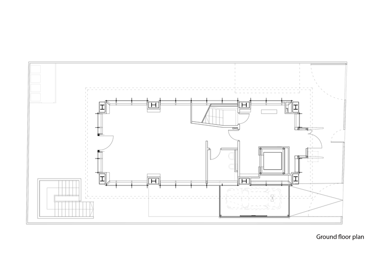
Ground Floor Plan (Drawing: CUMULUS)
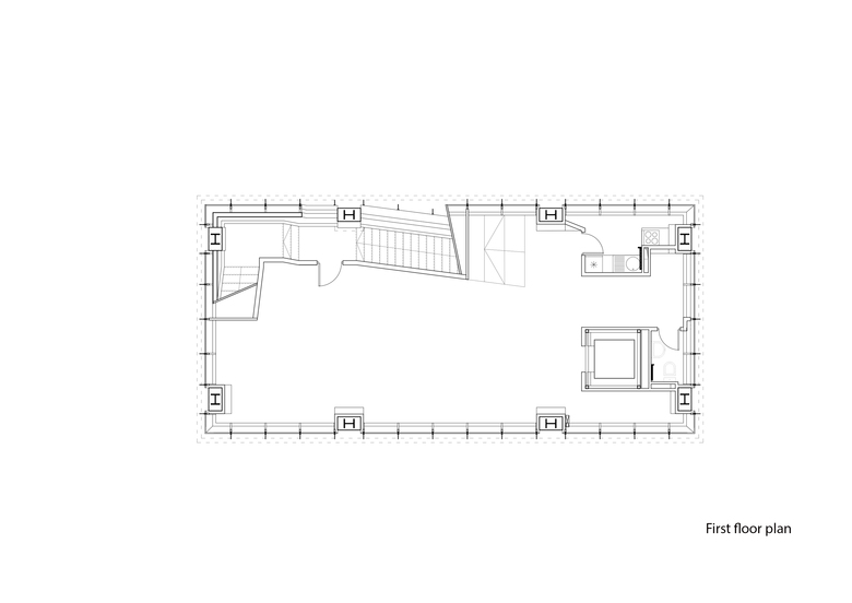
First Floor Plan (Drawing: CUMULUS)
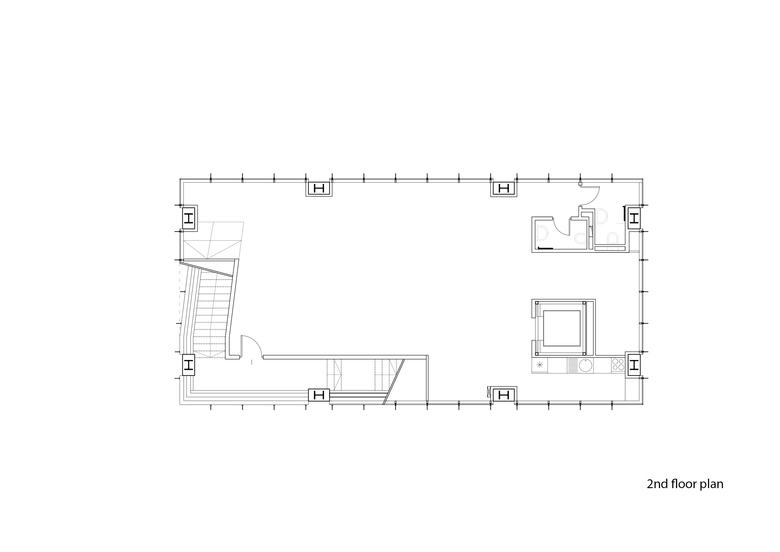
Second Floor Plan (Drawing: CUMULUS)
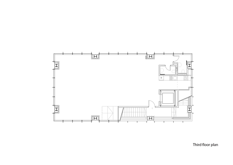
Third Floor Plan (Drawing: CUMULUS)
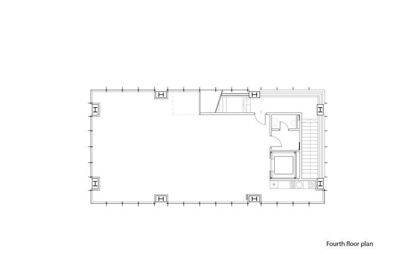
Fourth Floor Plan (Drawing: CUMULUS)
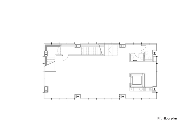
Fifth Floor Plan (Drawing: CUMULUS)
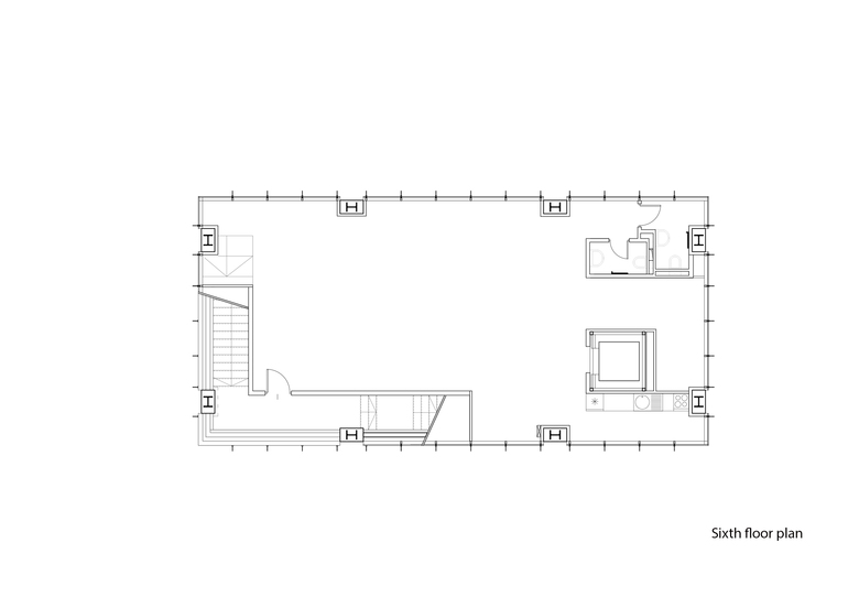
Sixth Floor Plan (Drawing: CUMULUS)
Elevations (Drawing: CUMULUS)
Longitudinal Section (Drawing: CUMULUS)
Transverse Section (Drawing: CUMULUS)

Other articles in this category