Modourbano Architettura

Peabodys Coffee Shop

Modourbano Architettura | 23. February 2017

PROJECT DETAILS

Client

Peabodys Coffee Limited

Location
Atkinson Morley Wing
St. George’s Hospital
Blackshaw Rd, London 

Program
Coffee shop, 83sm

Timeline
Project: 2016
​Built: January 2017

General Contractor
North West Commercial Ltd

Architectural Design
Modourbano Architettura

Collaborators
Ambra Chiesa
Luca Colli
Lorenzo Cristofore
Milan Dragoljevic
Ester Ippolito
Veronica Julita
Ana Magro Figueiredo Hervé Matondo Fundani

Consultants
Alessandro Costa

Flooring
Liuni Spa

Lighting and Furniture
Muuto

Photography
Simone Bossi 

Photo: Simone Bossi

The Atkinson concept comes from the idea of creating an enveloping and warm space for Peabodys customers. Wood has been used on all surfaces; from  floor to furniture such as tables and counter. 

Photo: Simone Bossi

Wood is the protagonist of the project; a number of boxes with a natural and sinuous geometry, parametrically distributed, descends from the ceiling hiding within the technical elements of the air conditioning and lights, and also ensuring greater efficient acoustic comfort. The customer is embraced by the warmth of wood, a modern and minimal feel which is at the same me domestic and familiar. 

Photo: Simone Bossi

The same materials are also found on the main counter and on furniture complements; benches and tables are designed by Modourbano for Peabodys and they configure the open space in small clusters with a well handled privacy. 

Photo: Simone Bossi
Photo: Simone Bossi
Photo: Simone Bossi
Photo: Simone Bossi
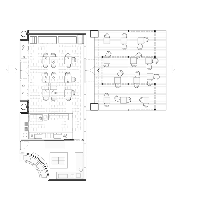
Floor Plan (Drawing: Modourbano Architettura)
Section (Drawing: Modourbano Architettura)
Sinuous Cubes Ceiling Diagram (Drawing: Modourbano Architettura)
Ceiling Elements Diagram (Drawing: Modourbano Architettura)
Ceiling Elements Diagram (Drawing: Modourbano Architettura)
Ceiling Elements Diagram (Drawing: Modourbano Architettura)

PROJECT DETAILS

Client

Peabodys Coffee Limited

Location
Atkinson Morley Wing
St. George’s Hospital
Blackshaw Rd, London 

Program
Coffee shop, 83sm

Timeline
Project: 2016
​Built: January 2017

General Contractor
North West Commercial Ltd

Architectural Design
Modourbano Architettura

Collaborators
Ambra Chiesa
Luca Colli
Lorenzo Cristofore
Milan Dragoljevic
Ester Ippolito
Veronica Julita
Ana Magro Figueiredo Hervé Matondo Fundani

Consultants
Alessandro Costa

Flooring
Liuni Spa

Lighting and Furniture
Muuto

Photography
Simone Bossi 

Other articles in this category