Walters & Cohen

Regent High School

Walters & Cohen | 2. April 2015
Photo: © Dennis Gilbert/VIEW

In 2009 the practice was approached by Bam Construction, who carried out the project under a BSF Design and Build contract for London Borough of Camden. Working closely with Bam, the council and the school, they developed a scheme for demolition, refurbishment and new build over four construction phases with a construction budget of £30m.

Photo: © Dennis Gilbert/VIEW

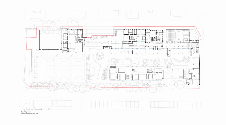
Piecemeal development of the school over the years had resulted in numerous disparate buildings, many of which were at the end of their life. The school suffered from various dark, enclosed, indirect circulation routes; teaching and learning spaces that were no longer fit for purpose; and a lack of good quality external spaces for students. As well as addressing these issues, the design needed to allow for an uplift of 488 students and 70 staff.

Photo: © Dennis Gilbert/VIEW

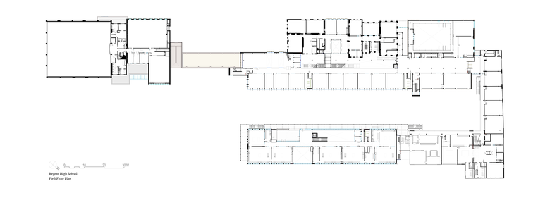
The design supports a wide variety of teaching and learning methods to suit the school's educational vision for up to 1,300 students. Traditional classrooms are grouped around flexible homebases, encouraging interactive, personal and collaborative working.

Photo: © Dennis Gilbert/VIEW

At the heart of the school is the Arcade, a triple-height circulation space linking new and existing elements of the campus. The Arcade is the main focus of the school and provides the new main entrance. "Flipping" the entrance from Charrington Street to Chalton Street is one of the major achievements of the design, which effectively reorients how the school relates to its surroundings and how staff, students and visitors approach the school.

Photo: © Dennis Gilbert/VIEW

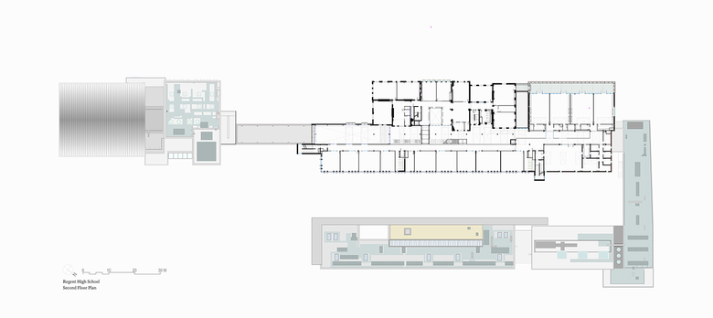
Its footprint has been kept to a minimum, with external space maximized to accommodate a variety of outdoor teaching and social spaces. The school's specialization on the creative arts is promoted with a state-of-the-art theater, which helps regenerate the north end of Chalton Street.

Photo: © Dennis Gilbert/VIEW

The building is much more "legible" than before, and is easy for all users to navigate, with lifts, level thresholds, co-located disabled toilets and generous circulation spaces. All requirements regarding provision for users with hearing and visual impairments have been met and the theater has an induction loop system.

Photo: © Dennis Gilbert/VIEW

PROJECT DATA

Cost: £30m 
Area: 14,800m²
Completion: December 2014
Architect: Walters & Cohen
Structural Engineer: Buro Happold
MEP Engineer: Buro Happold
Project Management: Camden Schools Projects
Landscape Architect: Grant Associates
Acoustical Engineer: Buro Happold

Context Plan (Drawing: Walters & Cohen)
Ground Floor Plan (Drawing: Walters & Cohen)
First Floor Plan (Drawing: Walters & Cohen)
Second Floor Plan (Drawing: Walters & Cohen)

Other articles in this category