Residence de l'Isle
Designed for a couple and their two children, the Residence de l'Isle is a reinterpretation of modern American houses of the mid-20th century. This single-family home, built on the banks of a river, in the northern suburbs of Montreal, is the result of an architectural conversation with the design work of the architects of that era. Hidden behind a row of tall, mature pines, its siting allows the existing natural vegetation to become an integral part of the project while optimizing the views towards the water.
Location: Suburban Montreal, Québec, Canada
Architect: Chevalier Morales
- Design Principals: Stephan Chevalier, Sergio Morales
- Project Team: Julie Rondeau, Christian Aubin, Ève Beaumont-Cousineau
Structural: Latéral
Landscape: Fabrique de paysages
Area: 580 m2
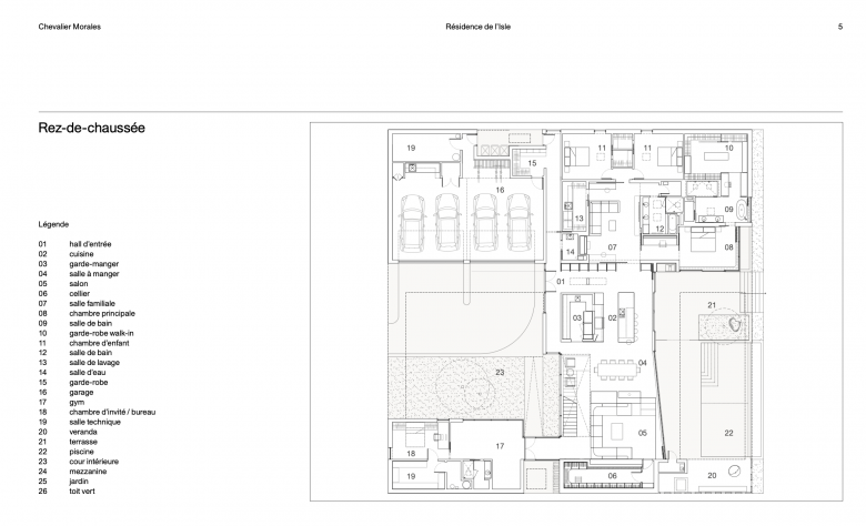
Revisiting some key architectural elements of modernism in a contemporary manner, the geometry of the floor and ceilings, the integrated wooden furniture and the masonry cladding have all been reimagined. The garage, a symbol of a time when suburbia and automobiles rhymed with progress and enthusiasm, is directly integrated into the house, which itself forms a perfect 100-foot square. The question of privacy versus openings, crucial in the 1950's, enables a response that creates two rectangular courtyards. They are inserted into the volume, bringing natural light into the heart of the residence, while also integrating the back yard and the swimming pool. These exterior spaces that are extruded from the initial mass also serve to define and structure the geometry of the interior space of the project. The 100-foot square is therefore in contact with an ordered exterior space placed in the foreground of the natural setting that remains intact beyond the boundaries of the house.
The siting of the residence makes it possible to reintegrate the pre-existing alignments of the land and to therefore conserve as many existing trees as possible. Large coniferous trees were then planted in the heart of the first landscaped courtyard that provides vehicular access. The programmatic distribution of the interior spaces takes into consideration the relationship with the street, the relationship to the river, the solar orientation and the specific needs of the inhabitants. Also, the living room space was lowered a few steps and a glass pavilion has been installed on the roof. While initially design as a single-storey house, the pavilion creates a variety of spatial experiences.
The north-south axis of the project houses the more intimate spaces with the need for privacy, while the living spaces are spread out along the river, thereby creating a strong link with the daily evolution of the surrounding landscape. The position of the garage makes it possible to minimize the presence of the residence to the street, while still creating a clear axis that marks the main entrance. It follows the same axis as the pre-existing access road, thus mitigating the impact on the site and its natural landscape. Abundant vegetation provides privacy for the residents while offering a green and natural context for the neighborhood.
A palette of materials, matched to the color of the natural trees bark, makes it possible to integrate the new tone-on-tone construction into its surroundings. Natural materials, including clay brick (wall), wood (soffit) and stone (flooring are natural), have been given preference. Brass accents have added to the project, as has metal cladding. On the front facade, a large bay window creates a visual flow through to the river while serving to accentuate the pavilion like feel of the design.
The mezzanine space that allows residents to benefit from an additional view onto the river serves to accentuate the composition and break up the horizontality of the residence. Some areas of the roof are covered with a white granular membrane while others have been landscaped, offering a green and temperate environment for this level. The overall emphasis of a sustainable design approach is enhanced through the incorporation of geothermal wells that provide both heating and ventilation for the residence.
Related articles
-
-
Cocoon Pre-primary Extension at Bloomingdale International School
andblack design studio | 19.08.2024 -
-
-
















