Cruz y Ortiz Amsterdam

Rijksmuseum Philips Wing

Cruz y Ortiz Amsterdam | 29. October 2014
Photo: Ronald Tilleman

The project consists of reorienting the entrance, accommodating diverse new functions and preparing the exhibition rooms for the temporary expositions starting from the 1st of November 2014. Several twentieth-century interventions have been set back and corrected, while other areas are appropriated for a new destination.

Towards a total exhibition area of net 1.320 m² there will be a new high-end restaurant with 135 seats, a public terrace of 255 m², a bar and reborn atrium of 203 m².

Photo: Ronald Tilleman

POINTS OF DEPARTURE RENOVATION

The logic of the Main Building consists of the two courtyards around which the galleries are wrapped. Revealing all these items and complementing it with the contemporary public square was one of the success factors of the renovation to guarantee a ceremonial entrance, spaciousness and safe environment with a public realm.

In the Philips Wing project Cruz y Ortiz were gifted a similar treasure. Although the courtyard in the Philips Wing was only latently present and deprived from any daylight since the late forties, a similar potential and obvious linking pin with the main building was present, right in the repetition of such a courtyard.

So currently, after leaving the west courtyard of the main building, by its southwest gate, the visitors will enter a pleasantly light pass-way allowing a stroll along the Asian Pavilion. The twist at the end of this pass-way, accompanied by a lowered ceiling, is later followed up by the newborn and half secluded atrium of the Philips Wing. The surprise of its discovery, the bright light and space gives an appealing sensation.

Photo: Ronald Tilleman

ARCHITECTONIC PROJECT

In order to open up this courtyard, all installations accommodated in the attic, were to be moved elsewhere in the building. Cruz y Ortiz opted for the basement below the courtyard: one of the useful remnants of the intervention from the 90’s. Once having dismantled the roof, its auxiliary construction that used to mask one of the more picturesque façades, became unneeded. Removing all these elements brought the daylight back into the core and revealed the Façade of Breda. This - by the original architect Cuypers - recomposed façade is made out of original parts from the Nassau Stables in Breda.

Here, like the Main Building the coherency is found in the synergy between old and new. On the one hand one will encounter the tectonics of the contemporary intervention, the Portuguese limestone Cascogne Azul and the acoustic baffle ceiling, rather known as chandelier, the bright white walls, the firm but elegant grey banisters, porches and doors. On the other hand the courtyard receives its charm from the Façade of Breda, which is framed within a new context of the contemporary atrium.

For the spatial design the changed position of the entrance was of high relevance. In all last interventions from both the 90’s (Quist) as the year 2003 (Van Hoogevest / Merkx en Girod), the entrance towards the building was organized from the outside. In its new role as Wing for the temporary exhibitions, the Philips Wing receives a reorientation towards the Main Building and its entrance courtyard.

Photo: Ronald Tilleman

GROUND FLOOR

From the atrium one can reach the new exposition areas in the so-called fragment building through the façade of Breda and its prevailing entrances of the abide gardener’s house. This area - that used to function as entrance and ticket hall in between “2003 and 2013” - has been brought back to its original functioning as musicological room.

Behind the opposite wall of the atrium, a posh restaurant in the high segment is placed. This has been one of the mayor functional changes from the inside and physical changes from the outside of the Philips Wing. The restaurant is publically accessible from the Museumstreet, where it presents itself by means of subtly opened doors along the formerly closed and numb character of the façade. The 7 shuttered windows of before have been replaced by 7 doors; maintaining the evident rhythm that characterizes the facade.

It herewith fulfils the requirements mentioned in the Masterplan of the City, to ‘activate the borders’ of the Museumplein and make them attractive and with a shareable use. With the enjoyable terrace, this will be a perfect spot for all kinds of people to meet, enjoy and eat. The Interior design is realized by Studio Linse.

Photo: Ronald Tilleman

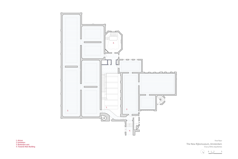
FIRST FLOOR

Using the steady and elegant stair, one reaches the first floor, with the bright exposition rooms “as they were meant to be.” Little effort has been done in these galleries, leaving the space intact and bringing certain parts more close to its origins. The former shop on the first floor has been taken in use again as a full-fledged exposition room; equal to the smaller adjacent room, where the full height hasn’t been perceivable since the days that Cuypers constructed it.

The former bridge that used to collide with the façade of Breda, connecting the Fragments Building with the Drucker Extensions on both sides of the atrium, has been replaced by a balcony by which the façade of Breda is left undamaged and the space for the atrium maximized.

Photo: Ronald Tilleman

MAINTENANCE AND RESTORATION

The extent until which restoration took place is lower than the Main Building. The way in which the roof lights are replaced by more sustainable new ones, is nevertheless the same, in order to achieve homogeneity in both plans. The slates and gutters are only locally repaired or replaced. Damaged parts in the facade have been brought back to its original state. New carpentries at the inner side of the antique ones provide a good climate and protection for the art. All the timberwork, including the remarkable shutters is placed in its full color.

Situation plan

TECHNIQUE

The functional changes in the Philips Wing together with the multiple character of its fragments, has implied several tour de forces if it concerns the fitting in of installations. The point of departure was to save the old existing and monumental casco and re-use existing ducts as much as possible for both the climate as the electricity. If new connections were to be made, they would all go through the newer and central part of the building: the cellars and the attics. Consequently all vertical main connections are foreseen in the shafts in the atrium, communicating the cellar with all its air handling units and the exposition rooms. Since part of the installations is reused, the fitting in of the ICT rooms and the folding and wrapping of the air ducts in the often scarcely measured rooms one of the biggest challenges.

Ground floor plan

SUSTAINABILITY

Not only ducts, insulation materials, electric boards and heating tubes are re-used, but as well many architectural elements such as the preset walls in the galleries haven’t been replaced. They were slightly modified and freshened up. In order to treat energy economically, the amount of visitors will determine the fresh air inlet by means of a CO2 controlled appliance. Thereafter the heat is regained from the extraction air of the galleries. Due to the connection to the main Building and its so-called energy ring, the Philips Wing will make use of the cool water supplies from the warmth and heat storage.

First floor plan

CREDITS

Client: Rijksmuseum, Rijksvastgoedbedrijf (Central Government Real Estate Agency), Ministerie van OC en W (Ministry of Education, Culture and Science)
Architects: Cruz y Ortiz Amsterdam BV, Van Hoogevest Architecten, Studio Linse
Installation advisor: ILEX Installatiemanagement bv
Contractor: Koninklijke Woudenberg b.v.
Installations Climate: Kuijpers Installaties Utrecht B.V.
Installations Electricity: Breedveld &Schröder B.V.

Section south-north

Other articles in this category