Woods Bagot

Ruyton Girls School - Margaret McRae Centre

Woods Bagot | 19. June 2017
Photo: Michael Downes (All images courtesy of BowerBird)

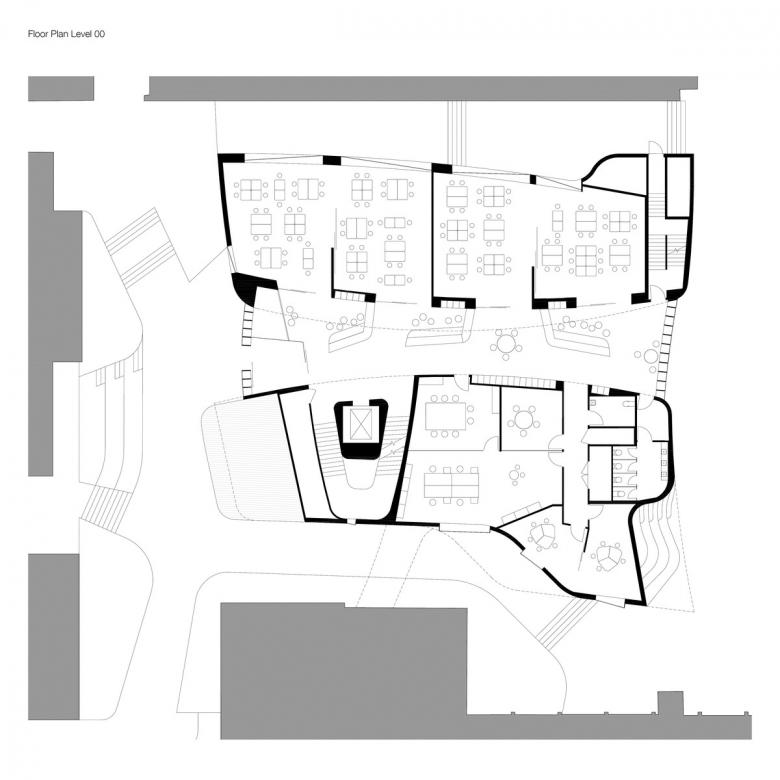
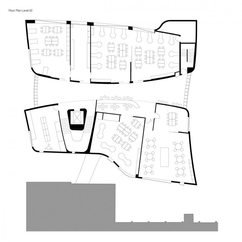
These include a mix of formal and informal learning spaces - a dedicated base for year 7 and 8 girls, science, drama and event facilities. The spaces are based on the concepts of transparency, mobility, adaptability and student-centeredness. The rooms have mobile furniture, allowing for maximum flexibility and an emphasis on collaboration. Internal glazing creates transparency between classrooms and the break-out space, doubling as an informal space for small group activities. The form and materiality is inspired by the medieval buildings of the Ruyton XI towns of which the school is named. The building is clad in stone pavers, which have been adapted for use as a rain-screen cladding system. This maintains the solidity of the surrounding brick buildings, while providing contrast in terms of scale, colour, vertical orientation, and sculptural form.

Client: Ruyton Girls School
Location: Melbourne, Australia
Architect: Woods Bagot
Team: Sarah Ball, Jo Dane, Nick Deans, Christopher Free, Emma-Louise Hannigan, Bruno Mendes, Lawrence Ng, Matthew Si
Area: 3,000 m/ 4 levels
Completion: December 2015

Photo: Michael Downes
Photo: Michael Downes
Photo: Michael Downes
Photo: Michael Downes
Photo: Peter Bennetts
Photo: Peter Bennetts
Photo: Peter Bennetts
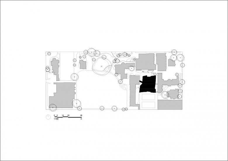
Site plan (Drawing: Woods Bagot)
Level 00 plan (Drawing: Woods Bagot)
Level 02 plan (Drawing: Woods Bagot)

Other articles in this category