Flanagan Lawrence

Shepherd’s Bush Pavilion

Flanagan Lawrence | 23. February 2015
Exterior at dusk (Photo: Anthony Weller)

Heavily damaged during World War II, the building was poorly repaired, subsequently converted to a Bingo Hall in 1983 and closed its doors for good in 2001, remaining disused for much of the next decade. In 2009 planning permission was granted for conversion into a four-star, 320-room hotel with conference facilities, café, restaurant, bar, retail spaces and a roof-top spa.

Exterior at daytime (Photo: Nick Guttridge)

Drawing on the influence of Art Deco cinema design, the foyer and atrium spaces employ simple curved surfaces in alternating bands of black and gold. The internally illuminated spandrel panels also minimise sound reverberation. At ground floor level, dark-stained, ribbed timber panelling and heavy curtains serve a similar purpose.

Atrium and bar (Photo: Anthony Weller)

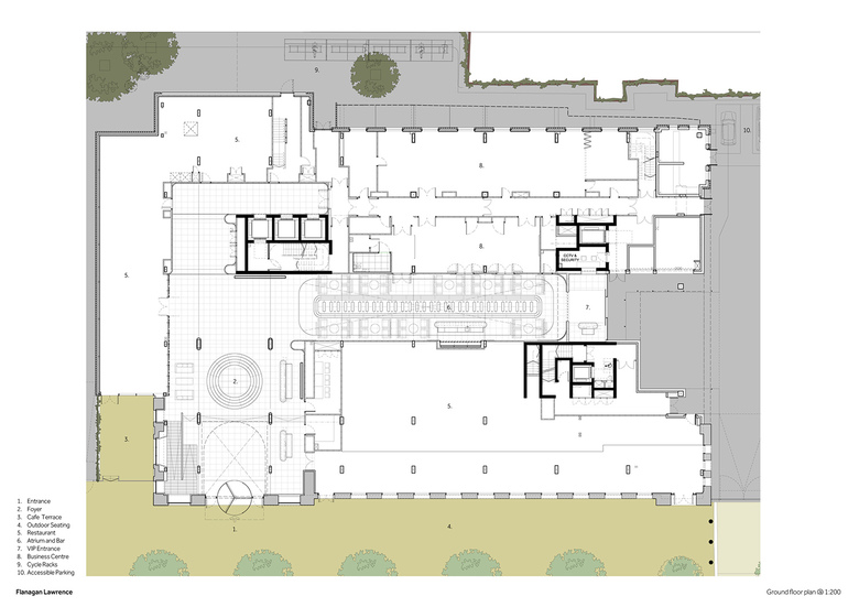
The honey-colored limestone floor is inlaid with brass, in two simple decorative elements. In the main reception, brass strips form a series of concentric circles at the center of the space, which are reflected in a ceiling coffer above, while in the atrium, the bands define the circulation route from the reception through to the atrium bar. The primary façades have been retained with modifications to bring natural light into the rooms behind. The building features a new glazed roof which follows the curved profile of the original, bringing daylight into the upper floors of the building.

Lobby (Photo: Nick Guttridge)
Lobby (Photo: Nick Guttridge)

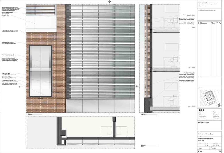
Additional insulation to the brick facades, high performance glazing, solar shading, improved air permeability and new energy-efficient plant all contribute to a significantly improved thermal performance.

Jason Flanagan, Project Director at Flanagan Lawrence, comments: "Our design has been informed by a detailed understanding of the building’s history and context. Our response complements and refines the original character of the building, protecting this important heritage asset, reactivating the streetscape and providing a new point of focal interest on Shepherds Bush Green."

Facade detail (Photo: Nick Guttridge)

PROJECT TEAM

Client: Dorsett / Kosmopolitan Hotels
Architect: Flanagan Lawrence
Delivery: Kosmopolitan
Contractor: Ardmore
Structural Engineer: Expedition Engineering & URS
M&E Engineer: McBains Cooper & Malachi Walsh 
Fire Engineer: McBains Cooper & FDS Consult
Vertical Transportation Consultant: McBains Cooper
Access Consultants: David Bonnet Associates
Planning Consultant: DP9
Rights to Light Consultant: GIA
Highways Consultant: Halcrow
Cost Consultant: Davis Langdon & McBains Cooper
Acoustic Consultant: Sandy Brown
Façade Subcontractor: English Architectural Glazing (EAG)

Before and after elevations
Facade detail
Ground floor plan
Longitudinal section

Other articles in this category