Ernesto Pereira
SilverWoodHouse
"Simply ... the SilverWoodHouse ... any attempt to adjectives falls short of the final experience of contemplation ... congratulations and thanks Ernesto." These were the words of my clients Rui and Marisa when asked about SilverWoodHouse.
I could not be more impressed by the answer, on my way to see the architecture. A challenge, an interpretation, a creation, by me, not for me, but for someone.
In my first big project and work, the anxiety of the final contemplation and live the power of the space, was huge. I live in it as a guest of course, but I was able to dive into the pool and lie down in the sun, a treat and an honor to take advantage and try my work. Yes, SilverWoodHouse, is my presentation to the world of design, architectural and constructive, my route in the course of a project/work moves from its conception to its construction. I have literally gotten my hands dirty, mainly in the art of carpentry. More gratifying, still, was seeing the family pleased (parents included) with the final product, and the pride they felt in showing the "work" to their guests.
It all started when I found myself without a clear career path after having executed a project for relatives which left me dissatisfied due to the inability to participe in the process from beginning to end. By feeling what architecture could achieve, which I believe was taught to me, I bought an unoccupied house and transformed it into a dwelling and an office. This is my biggest mockup, my ever evolving, endless project.
My upbringing and surroundings were always connected to construction. On one hand I was surrounded by family and friends who were carpenters and masons. On the other hand, I was surrounded by a rural environment where creating gadgets, slingshots and cages were a preferred hobby. In addition, the excessive costs of materialiaing my ideas led me the decision of making my own home from start to finish, by making mistakes, unmaking and remaking. As the result thus far was good, a couple who was walking near the beach liked and noticed that my way of perceiving architecture could solve a problem they had.
I was shown the house where the couple intended to live, provided that its transformation was to their liking and amazed them. I was asked to see what could be done with the building, without any budget limit nor deadline. The request only entailed the following: a work of art, a fascinating product in which the couple could see themselves living in.
And so, as I think architecture is the interpretation of the client/user’s needs, I sought out to know them, exhaustively, their tastes, quirks, routine and pleasantries. A solution was presented: The SilverWoodHouse.
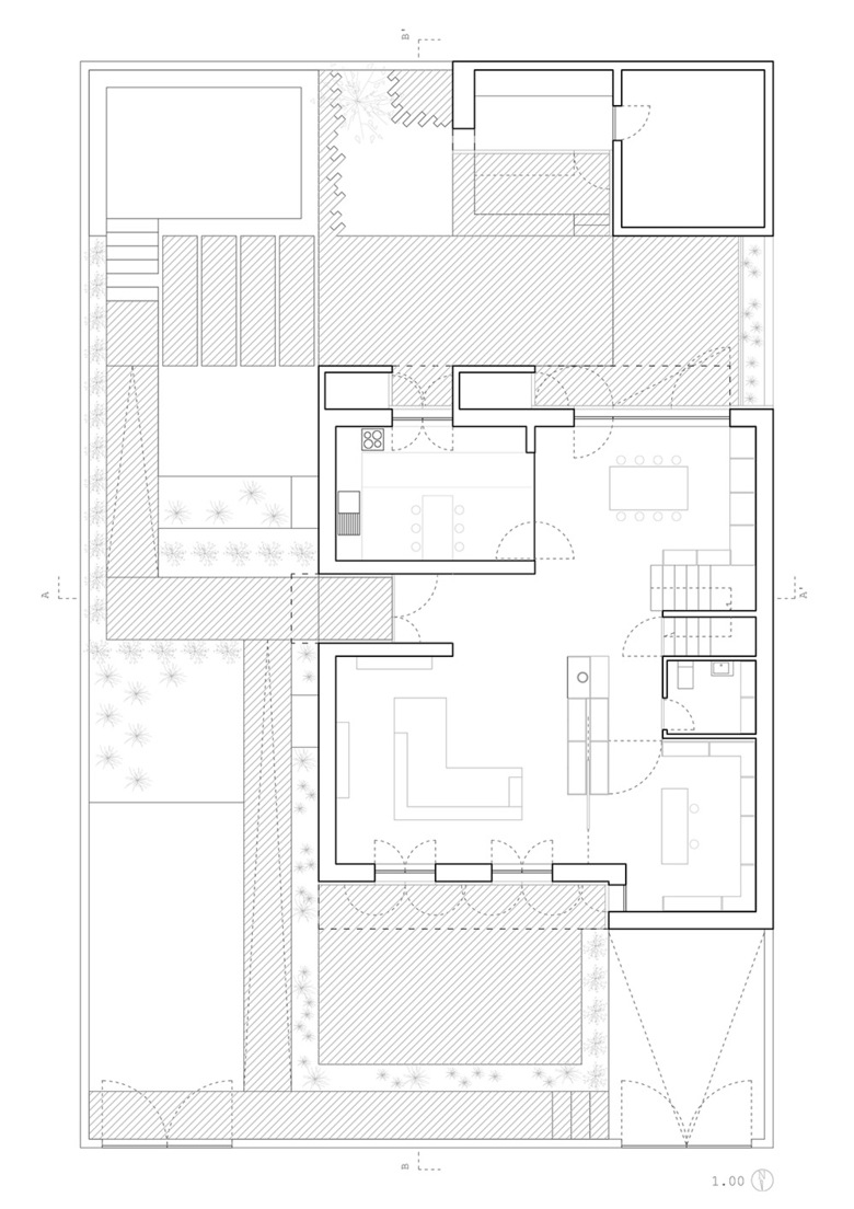
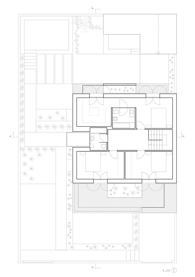
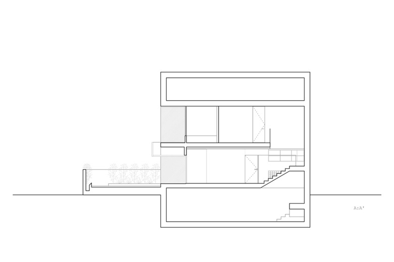
The remodelling work was one of a soulless house of typical construction , interior distribution and rural exterior interpretation. I decided to bring the beach to my clients so that they could feel, every day, the proximity of the dunes , sand and untreated wood.
The photographic journal surprised me. The captured moments, the interpretation from people who were strangers in the process, images that can speak for themselves,the simple interpretation, which triggers sensations of pride and care. However, I feel suspicious. I hope you like this interpretation.
PROJECT CREDITS
Name: SilverWoodHouse
Location: Mindelo, Vila do Conde, Portugal
Dates: 2013 - 2014
Client: Marisa & Rui
Cost: €100,000
Architect: Ernesto Pereira
Our team: Construction and Coordination: 3r Ernesto Pereira. Architecture + (Re)construction
Photos: João Morgado
Engineering: Rui Martins . Engitek
3D images: Nuno Costa . NRenders
Cement: Abilio Costa Manuel Costa Paulo Moreira
Carpentry and Finishing: Ernesto Pereira, João Rocha, Mauro Gonçalves, Helder Oliveira, Helder Moreira, Albino Paços, Afonso Esperança
Electrical: Bruno Moreira
Plumbing: Albino Labruge
Frames: Ivan Piloto
Garden: Maria José Pereira
Consulting: Ernesto Queirós Pereira
Related articles
-
-
'Just Another Fake' – Montemor-o-Novo Studio by Ai Weiwei
Eduard Kögel, Ai Weiwei | 19.05.2025 -
-










