Studioata

Sospeso

Studioata | 8. July 2014

The original distribution is still recognizable thanks to the vaulted ceilings that characterize the three different areas and the preservation of the existing pavement.

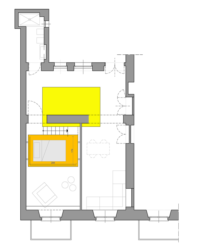
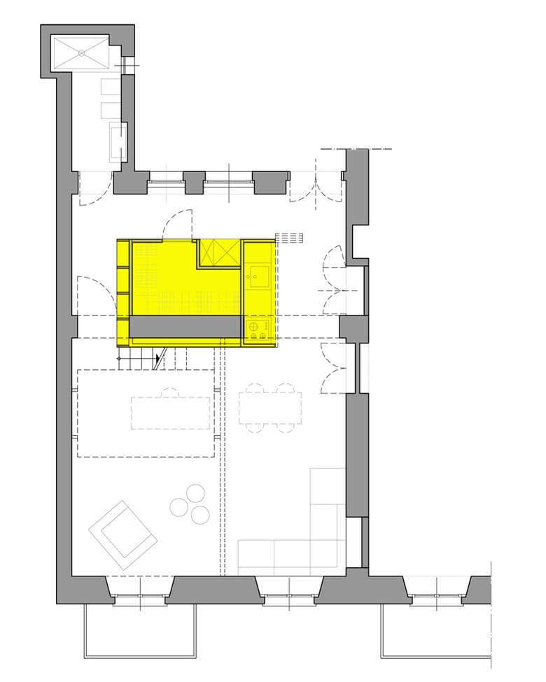
A central volume binds and organizes the three areas and contains the service areas: a large walk-in closet and a kitchenette hidden behind glazed wooden panels that redial the limits of the central volume.

With the intention of releasing as much as possible the space of the studio, the bed is hidden inside a suspended volume, accessible by a light metal ladder.

The walls and vaults, painted in a light gray, highlight the suspended volume. The original parquet flooring warms and enriches the interior of the apartment.

Floor Plan
Loft Level Plan

Other articles in this category