Dushe Architectural Design
The Renovation of Jiahe Boutique Hotel
For the Jiahe Boutique Hotel, Dushe Architectural Design has extracted the "nature trail" feelings from the landscape in order to create a unique visual environment and a sequential spatial experience for the guests.
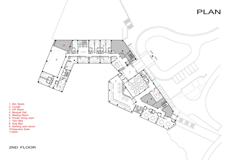
Jiahe Boutique Hotel is located in the east new town of Jiangyin, also by the Yushan Lake. The building area of the project is about 7000 square meters. With a proper renovation project design, the designers successfully transformed the former office building to a Boutique Hotel which has 50 guest rooms, 8 dining rooms, banquet halls, meeting rooms and a swimming pool. In the project, Shanghai Dushe Architecture Design Co., Ltd. has made an effort towards the integrated architecture, interior and landscape design, which also demonstrates the persistent pursuit of the complete quality from the designers.
Building renovation:
The existing limitations must be considered the big difference between renovation projects and new projects. At the beginning, the owner put forward three requirements: assessment of the possibility of transforming the exist building into a hotel, strict control of the investment, no alternation of the façade (except in the entrance) under the planning rules. To provide a design that satisfies not only owners but also designers themselves under a limited investment is an eternal task for the designers. We reformed the space by completed steel structure through maximizing the use of existing structure. Through the professional suggestions from the electromechanical engineer, part of the original equipment gets to remain its utilization. For the new function, the logistics flow has been redesigned, also some reasonable arrangements has been made to meet the requirements of the hospitality management combining the existing conditions. Through a series of specific design strategies and proposals, a mutually satisfying work has laid a solid foundation based on the control of the investment. About the no alternation policy of the façade, our suggestion was to make the necessarily renovation to the entrance, the reason for the decision is on one hand, the original design couldn’t meet the functional requirements of drop-off zone; on the other hand, the original feature was not capable of satisfying the unique atmosphere of a boutique hotel. Above all, the land area has feasibility to be reconstructed.
The recreation of space:
The landscape, interior, architectural space of the building has provided constant sensory stimulations to the guests from the moment they ride or walk into the hotel area to their entering to the lobby. The integrative design of the hotel starts from the entrance area in our concept, but not confines to the main building of the hotel, we emphasize the integration of the three. In the design of the entry sequence for the Jiahe Boutique hotel, we extracted the "nature trail" feelings from the landscape, in order to create a unique visual environment and sequential spatial experience for the guests.
Related articles
-
-
-
A Loop for the Arts: The Xiao Feng Art Museum in Hangzhou
Eduard Kögel, ZAO / Zhang Ke Architecture Office | 15.12.2025





