Rudy Ricciotti

The Rivesaltes Memorial Museum

Rudy Ricciotti | 4. May 2017
Photo: Kevin Dolmaire (All images courtesy of EU Mies Award)

We cannot remain detached from the history of Camp Joffre through a discourse that is indifferent to the human drama that unfolded on this very site. The memorial is silent and ponderous. It is there to take the hits instead of others. For absentees. It must be something that embodies the responsibility of the memory.

Aerial (Photo: M. Hedelin - Region Languedoc-Roussillon)

This memorial lies in the earth, squarely facing block F, with a calm and silent determination, untouchable, angled towards the sky. At once buried in, and emerging from the earth, the memorial appears on the surface of the natural landscape as one enters the camp, and stretches to the eastern extremity of the former meeting place, to a height that is level with the roofs of the existing bunkhouses. This arrangement or co-visibility does not hinder a reading of the features of block F. The effects of erosion over time are noticeable in some of the buildings, thereby marking erasure and absence, questioning the visitor memory or oblivion. The Memorial of Rivesaltes, compressed between earth and sky, between past and memory, is located exactly in the present and the life itself. In this desert environment, a few dozen metres away, it no longer exists. Its formal violence demonstrates the impossibility of forgetting! Excavation and petrification of an erased memory.

Northwest elevation (Photo: Kevin Dolmaire)

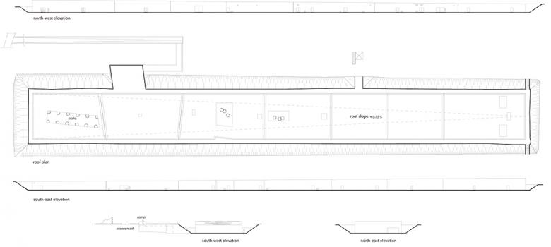
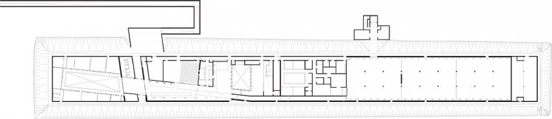
The concrete integral construction is the only structural scripture. The memorial is represented by an ochre-colored concrete monolith casted in place. The massiveness of the material was achieved by a technology allowing to avoid the formwork holes. The memorial is reached by the indirect pathway via a ramp that is partially buried in the ground. This tunnel ends abruptly: the visitor finds himself facing a block that is 240 metres long. The memorial offers no view of the exterior, except for the sky. Three patios structure the organization of the learning labs, social area and offices, all the while providing a certain sense of comfort.

Outside detail (Photo: Kevin Dolmaire)
Access corridor (Photo: Kevin Dolmaire)
Exhibition hall (Photo: Kevin Dolmaire)
Library (Photo: Kevin Dolmaire)
Patio (Photo: Kevin Dolmaire)
Site plan (Drawing: Rudy Ricciotti)
Ground floor plan (Drawing: Rudy Ricciotti)
Roof plan and elevations (Drawing: Rudy Ricciotti)


Photos of the jury visiting the Rivesaltes Memorial Museum, courtesy of the EU Prize for Contemporary Architecture - Mies van der Rohe Award Facebook page:

Other articles in this category