The Solid and Void
Staggered spaces derived from containers present combination of the solid and void.
Location: Haiyong County, Chongming Island, Shanghai, China
Design Firm: Yiduan Shanghai Interior Design
Creative Director: Xu Xujun
Design Team: Xu Xuwei, Liu Wei, Gong Xuan, Liu Wei
Area: 1,800 m2 (building), 2,000 m2 (landscape)
Manufacturers: Kohler, NVC, USG Boral
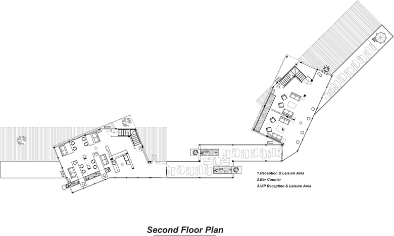
The project was built from containers, situated at Orenda · Chongming Island, Shanghai, China. Its isolated location on an open grassland, as well as the narrow interior spaces of the containers, made the project challenging. In order to give the ten ordinary staggered containers unique aesthetics, the designers boldly extended the inner space of the containers outwards, through creating a void box connected to each closed container. The added boxes, framed by grilles, increased usable area, met the functional demands, and formed a contrast of solidness and void with the containers. Natural light can be filtered through grilles, generating a poetic view of light and shadows. The containers, and the new boxes generated from them, together produce staggered and overlapping architectural form, making the building look modern and futuristic.
The overall architecture features a coordinated palette of white and light natural wood color, which gives it a clean, simplistic and modern visual impression. Besides, matched by the surrounding green grassland, the architecture harmoniously blends with nature. A meandering river passes through the middle part of the building, adding flexibility and vitality to it. The entire building is composed of three floors, with 1F functioning as reception and display space, 2F providing simple meals, coffee and tea and 3F serving for working, meeting and business activities. The circulation conforms to the natural surroundings, offering different view at each step, and Zen elements utilized are well coordinated with the modern and minimalist design style. The indoor and outdoor spaces are integrated as a whole, which breaks the convention and gives the architecture soul.
Related articles
-
-
-
A Loop for the Arts: The Xiao Feng Art Museum in Hangzhou
Eduard Kögel, ZAO / Zhang Ke Architecture Office | 15.12.2025





