Barberio Colella ARC

Unboxed

Micaela Colella, Maurizio Barberio | 24. October 2014
Visualization © Micaela Colella, Maurizio Barberio, 2014
Visualization © Micaela Colella, Maurizio Barberio, 2014

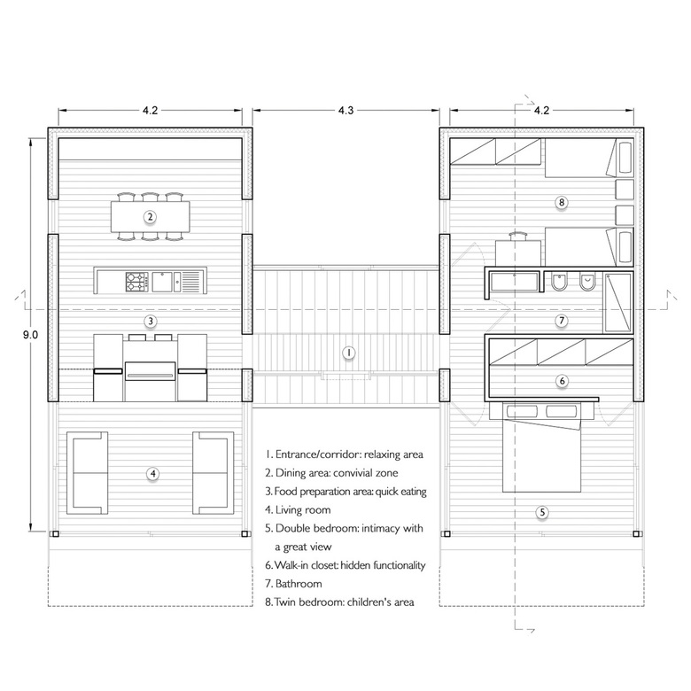
The house is thought to be placed in the beautiful town of Polignano a Mare, Apulia. The high standardization of the modules and their total prefabrication allow the study of various solutions easily. This goal is achieved by splitting the building in several basic structural elements designed to be mounted with all the finishes and without thermal bridges.

Visualization © Micaela Colella, Maurizio Barberio, 2014

The house is 100% recyclable. It is also completely removable – thus movable – thanks to an innovative foundation made of steel, which allows the reduction or elimination of the excavation. A low inclination roof on the top (5%) allows the installation of solar roof tiles (Tegosolar technology), capable of producing electricity and heat. The house has a clear division between the living and the sleeping area with a glazed corridor/entrance in the middle: a journey in the nature, able to reestablish the contact with the surrounding environment (flow of time) at each passage.

Visualization © Micaela Colella, Maurizio Barberio, 2014

Credits

Firm: Barberio Colella ARC
Credits: Micaela Colella (Project Leader), Maurizio Barberio (Principal Architect)
Contacts: mauriziobarberio@hotmail.it / micaela.colella@hotmail.it
Project name: Unboxed - 100% recyclable prefab wooden house‏

Visualization © Micaela Colella, Maurizio Barberio, 2014
Drawing © Micaela Colella, Maurizio Barberio, 2014
Drawing © Micaela Colella, Maurizio Barberio, 2014
Drawing © Micaela Colella, Maurizio Barberio, 2014
Drawing © Micaela Colella, Maurizio Barberio, 2014
Drawing © Micaela Colella, Maurizio Barberio, 2014

Other articles in this category