Villa Troglodyte

Jean-Pierre Lott Architecte | 18. October 2019
Photo: Loïc Thebaud
Project: Villa Troglodyte, 2019
Location: Monaco
Client: JB Pastor & Fils – M. Caetano
Architect: Jean-Pierre Lott, Atelier Raymond 
Landscape: Atelier Jacqueline Osty & Associés 
Structural : E&G
MEP: Somibat
Electrical: JB Pastor & Fils Électricité 
HQE: Oasiis
Surface Area: 500 m2 SHON
Photo: Loïc Thebaud

The challenge of this project was to fit the house into the landscape by working with rather than against it. Thus, the project is built backwards, it is hollowed out of the mass. The views must be framed around chosen perspectives. Here, space is created by gutting the rock, not through construction. 

In the age of global heating, the project had to be economical, take advantage of natural renewable energy, i.e., geothermal and solar, capture rain water and overcome environmental challenges.
 

Photo: Loïc Thebaud

The idea of a grotto is quite similar: to cut through the rock is to pass from the light into darkness. Entry to the house is through a fracture in the rock. From this point, via a footbridge, one accesses a very large room overlooking a pool − a metaphor of an underground lake. Light filters in through a large fracture running across the entire height of the house, it too being a reference to the subterranean world. The entire path through the house linking the rooms is organized around this fracture. 

Living areas have openings cut out of the rock in search of light: all the windows have specific frames depending on their function as bedrooms or living areas. They are an integral part of the rock, like paintings, they create a dialog between the natural and the built.

Photo: Loïc Thebaud
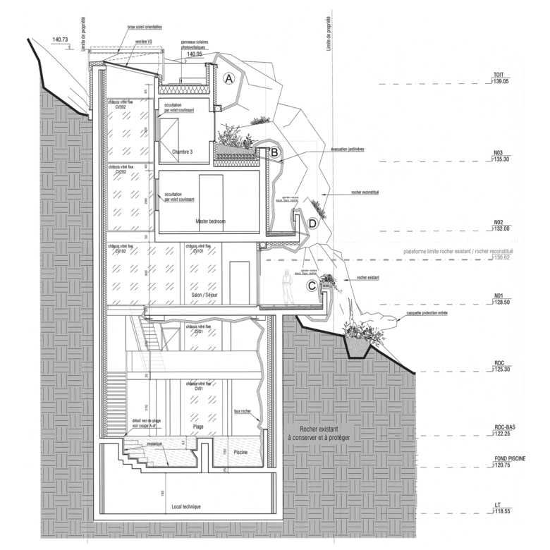
The Rock

The existing rock is kept for the ground floor, whereas in the upper levels, it is recomposed with an identical texture to that of the existing rock. The designed forms along with the recreated vegetation expose the natural rock features of fractures, cavities and strength, without leaving the impression it is merely some sort of cladding of built walls.

Drawing: Jean-Pierre Lott Architecte
The Floor Plan

The house is organized around five levels, with access to the ground level from the street via a footbridge overlooking the pool. From the entrance, voids and glass plates provide perspectives of the entire house. The living room and three bedrooms are located on upper floors, accessible by a staircase placed within the great facture traversing the house. A glass elevator also serves these floors.

Photo: Loïc Thebaud
Environmental Laboratory

In addition to its purely architectural aspect, its design appropriates thinking about its impact while ensuring its occupants enjoy a dry and comfortable interior environment. The Villa Troglodyte’s consumption is less than 40% of the consumption of a conventional house based on the Réglementation Thermique Française (French thermal regulations). This goal is reached by means of bioclimatic architecture, by the thermal performance of the building’s skin, and the search for maximum penetration of and diffusion of natural light. Reliance on renewable energies available on the site, i.e. geothermal and solar, ensures production of most of the Villas requirements.

Photo: Loïc Thebaud
The Materials

Natural materials, either recycled or from the region, were preferred. The structure is made of Low Carbon concrete and the cladding in cork from the Var department is a healthy and dry form of natural insulation also contributing sound proofing effects. The walls are clad with lime in natural pigments and the wood floors are made of recycled, emerged pilings used in mussel culture systems. Doors and staircases are made of solid wood from responsibly and sustainably managed forests.

Photo: Loïc Thebaud
Photo: Loïc Thebaud
Drawing: Jean-Pierre Lott Architecte
Drawing: Jean-Pierre Lott Architecte
Drawing: Jean-Pierre Lott Architecte

Other articles in this category