White Square
White Square is located at No.99 Yunxi road in the central area of Nanjing airport city. With the construction development of new airport city, a vast comparative maturity residential area has been built. Noise and construction dust from building sites have bad effects on the original inhabitants. In this context, our topic is to plan a region where a park is expected to be built, as are functions of exhibition, work, etc.
Location: Nanjing City, Jiangsu Province, China
Architect: MINGU DESIGN
- Principle Designer: Jaco Pan
Lighting Consultant: DARK LIGHT LIGHTING DESIGN
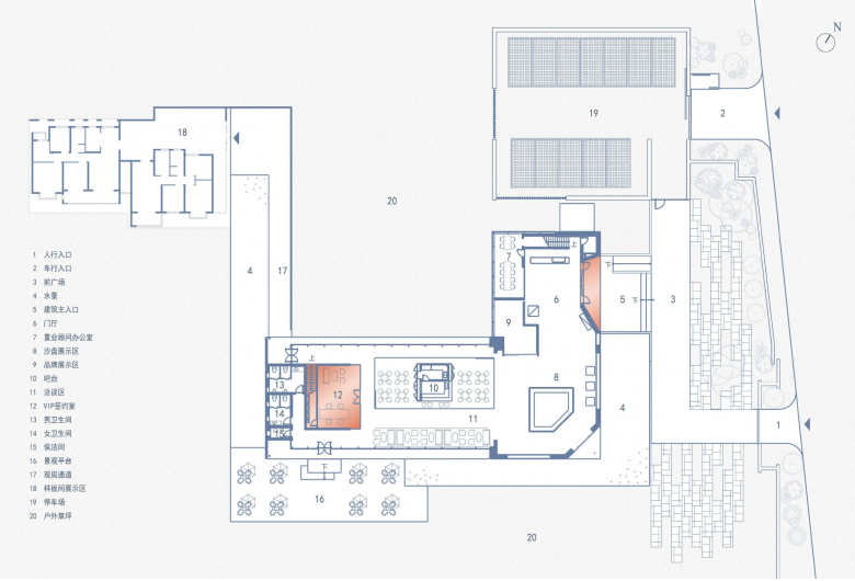
Site Area: 3,000 m2
Built Area: 1,200 m2
An undulating green park is built between building and city. In this park, different sense changes with the seasons. It invites people to stroll, jog, take photos and for kids to have fun. All of this bring vigorous vitality to the surrounding community. The original lawn and calm water make the sense of environment akin to paintings by Cézannes, which brings people happiness by escaping from reality. As a new building of this area, to achieve the harmony with surroundings, the small volume tries very hard to contact with outside world in a different construction method. Plenty of floor height and high-quality building material reflect the understanding of comfortable space and responsible attitude of the architect.
This building is a “box area” with “boxes” inside, arranging the basic functions to satisfy the needs of negotiation, exhibition, and work. Meanwhile, it reserves empty space appropriately by controlling the height and colors of boxes to forge the diversity and tension of the space. The design of high ceiling above the exhibition area is extension of the function and the symbol of spirit. It’s also the core spirit of this work. The architect chamfers a bottom of the box to correspond with the crossroad, which express the modesty and self-discipline of the building. The entrance is embedded in the building with the material and color variations — not eye-catching but distinct.
Furniture, furnishings and building interactive well with each other. People can enjoy the views of yards at the same time in lots of positions in the building. Apart from the exhibition area, people’s active area is assembled in the south of the building. Sunlight streams in from large glass, the lawn terrace outside is the extended function of the building. It provides the uninhibited communication of the environment, art activity, and small exhibition space.
To combine topic of airport, White Square uses white as main tone to symbolize the clouds, with simple and light construction. At night, with light shining from the building, it looks like a crystal lighthouse. The blue window on the top of the building symbolizes the eye people look up into the sky.
Related articles
-
-
-
A Loop for the Arts: The Xiao Feng Art Museum in Hangzhou
Eduard Kögel, ZAO / Zhang Ke Architecture Office | 15.12.2025 -


















