Grellingerpark
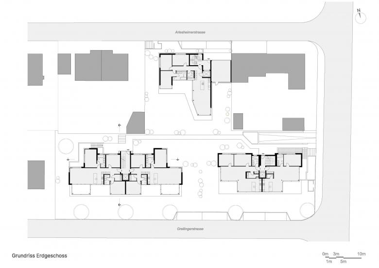
Die Wohnüberbauung «Grellingerpark Reinach» umfasst drei Mehrfamilienhäuser, die durch eine gemeinsame Autoeinstellhalle mit 28 Stellplätzen verbunden sind. Die besondere Form des Grundstücks gliedert die Gebäudekörper in zwei Zeilen. Die ökologisch hochwertig gestaltete Umgebung schafft nicht nur einen hohen Mehrwert für die Bewohnerinnen und Bewohner, sondern fasst die drei Häuser zu einem stimmigen Ganzen zusammen.
Die Mehrfamilienhäuser wurden so auf der Parzelle platziert, dass trotz der verdichteten Bauweise jede Wohnung von optimaler Belichtung und hoher Privatsphäre profitiert. Zwei Gebäude an der Grellingerstrasse wurden als «Bruder und Schwester» konzipiert und nach Süden ausgerichtet, während das Haus an der Arlesheimerstrasse als eigenständiger Solitär nach Südwesten orientiert ist.
Die Überbauung bietet einen ausgewogenen Wohnungsmix aus 11 Eigentumswohnungen mit 3.5 bis 4.5 Zimmern und sieben Mietwohnungen mit 2.5 bis 3.5 Zimmern. Sämtliche Wohnungen überzeugen durch einen hochwertigen Innenausbau, helle Wohnräume mit offener Küche und Kochinsel, grosszügige Zimmer, gedeckte Aussenflächen sowie ein Reduit mit Waschmaschine und Tumbler. Jedes Stockwerk ist bequem mit dem Lift erreichbar und rollstuhlgängig.
Eine Photovoltaikanlage und die Beheizung mittels Erdsonden sorgen für eine nachhaltige Energieversorgung.
- Year
- 2022
- Project Status
- Built









