Umbau Haus Freiestrasse
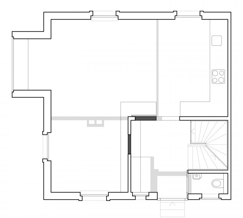
Beim Umbau einer Doppelhaushälfte aus den 1920er Jahren im Winterthurer Arbeiterwohnquartier Töss sind mit minimalen Eingriffen in die Grundstruktur des Hauses grosszügige Räume entstanden.
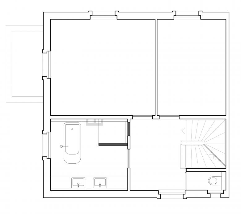
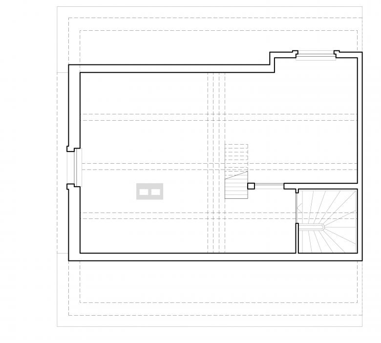
Küche und Bad wurden komplett erneuert, das Dachgeschoss bis unter den First geöffnet, gedämmt und ausgebaut. Aufgrund der äusseren Kohärenz mit dem Nachbarhaus und des kleinen Budgets der jungen Familie wurde auf eine zusätzliche aussenliegende Wärmedämmung der Fassade verzichtet. Mit dem Ersatz aller Fenster und Türen sowie der Dämmung von Dach und Kellerdecke konnte eine energetisch sinnvolle und wirtschaftlich tragbare Lösung gefunden werden, die auch den ursprünglichen Charme des Hauses erhält.
Beim Innenausbau wurden die bestehenden Oberflächen wo möglich belassen oder wo nötig lediglich sanft erneuert. Die alten Tannenrimenböden in den oberen Geschossen und das bestehende Treppenhaus wurden geschliffen und geölt und das ganze Haus mit natürlichen, mineralischen Farben gestrichen. Alle Sanitär- und Elektroinstallationen wurden integral erneuert.
Architektur und Bauleitung: Wagner Vanzella Architekten
- Year
- 2023
- Project Status
- Built
- Client
- Privat





