VJTI Hostel

© DCOOP

The heritage campus of the VJTI is located is one of the most
verdant and peaceful localities of Mumbai. The heart of the
proposed building is the central courtyard. This void holds
together the various activities and connects the various
levels both literally and experientially.
Staircases and bridges criss-cross this core to form a playful
network of circulation. The buzz of the core draws from and
supports the energy of the young people inhabiting it. At the
same time the core is also timeless in its essence.
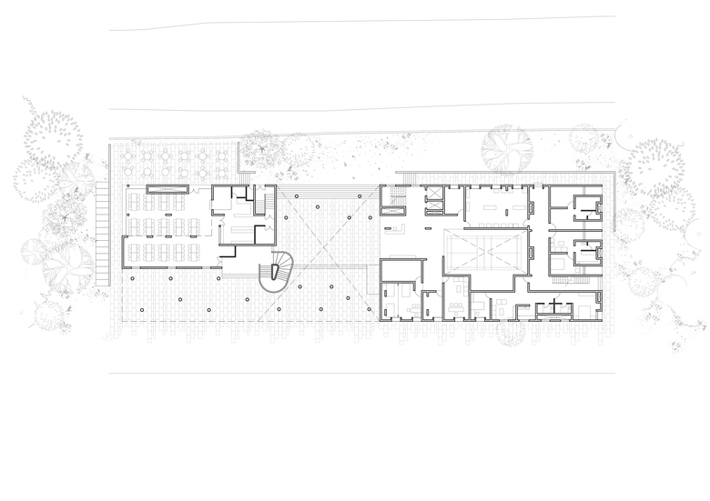
While the central court is the community space of the
hostels, the rooms become spaces of retreat and study.
The pragmatic arrangements of rooms around the courtyard
makes the building efficient to construct. At the same time,
punctures in the wall of the rooms connects the central
space to the verdant green outside. These punctures also
create social spaces of different scales where students
can come together. Using the natural drop of land on site,
a sunken court leads to the triple height entrance to the
hostel area.
The sunken court houses an enclosed gym area and a semicovered
sports areas which flows out and connects to the
landscape at the back of the building. The two mess areas
and the computer facilities take up half of the first two
floors. From the third floor onwards the boys rooms take
up the rest of the building.

© DCOOP
© DCOOP
Massing
© DCOOP
Section
Visualization © DCOOP
Ground Floor Plan
Drawing © DCOOP
Typical Plan
Drawing © DCOOP
Elevation
Drawing © DCOOP
Project Status
Design
Team
Quaid Doongerwala, Shilpa Ranade, Mathai Hsoc George, Komal Koli, Manisha Hegde, Prakool Soni, Suresh Sawant, Ramona Vaz

Other Projects by DCOOP Architects 

Bridging the Gap
India
School of Sciences
Cuddapah, India
Generator House
Sidheegram, India
Ensemble Office
Mumbai, India
Student Hostels
Cuddapah, India