Genetic Mutation House
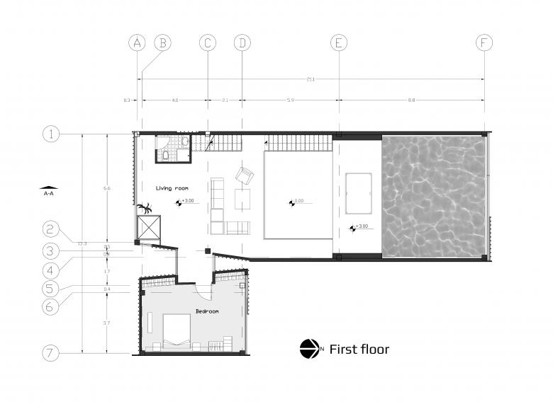
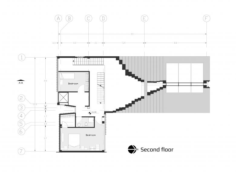
The villa called Genetic Mutation is designed on a land located on the eastern outskirts of Tehran. This villa has a large indoor poll and its integration with the main building created the exceptional form of the project. Here the architect started with the archetype of home, as it is in imaginary of every children before receiving the influence of adults. In her projects, Habibeh usually works on abstract and fantastic ideas and gradually the basic concepts come closer to reality. In this project, the process is in reverse.
The basic form of the project reflects the icon of a house with box shape body and sloping roofs. Mutation of the form, due to situational conditions, transform radically the project to the point that it becomes unrecognizable. Despite its unusual shape, the project is deeply related to the typology of common residential buildings and it has a strong iconic quality.
“Today, the vocabulary of forms are exhausted, I like to create forms that are iconic and exceptional at the same time; architect’s main task is to transform ordinary to extraordinary” says Habibeh.
This latter work incorporates themes already investigated in her previous projects: brick texture, play of light and shadow, ambiguity in openings and closures, fragmentation, unity and multiplicity at the same time, simplicity and complexity. Text by Kamran Afshar Naderi.
- Year
- 2016
- Project Status
- Design
- Architect
- Habibeh Madjdabadi
- Modeling & Graphic
- Sara Soltani, Mahsa Mohseni, Mohammad Bosak, Saman Heidari








