Mobility Hub Zug Nord
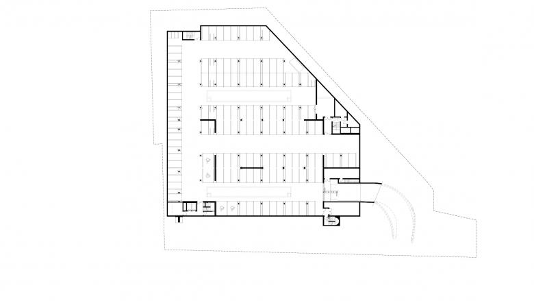
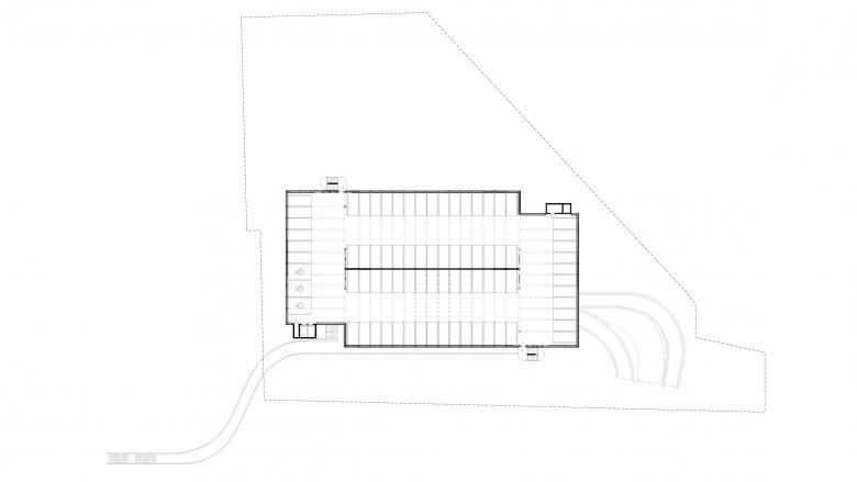
Mobility Hub Zug Nord (MHZN) is not an ordinary parking garage. It forms the entrance to the Tech Cluster Zug (TCZ) via the curved pedestrian bridge but is also the gateway to the city. It is a building directly connected to the Zug-Baar motorway bypass and to a public transport network that in the future will no longer consist only of trains or buses.
At the MHZN, for example, visitors will change to a self-driven bus, which will take them either to the TCZ or to the city. In addition, car park users can rent e-bikes or e-scooters at any time to cover individual routes with great precision. The fact that such a hub will be equipped with charging stations for electric vehicles is hardly worth mentioning these days. The MHZN will, however, be designed in such a way that in the future it will have a fully automated parking system with self-parking vehicles.
Well-thought-out concepts such as these are what make the MHZN an intelligent building. The MHZN with an integrated bistro and a shop of HandwerkStadt Zug is intended not the least to advance the development of Zug as a Smart City by testing and refining novel mobility concepts.
The Tech Cluster Zug is a development project which will transform the factory site of V-Zug over many phases into an innovative cluster of urban industry. Since 2013, Hosoya Schaefer Architects are working on the masterplan and transformation.
- Year
- 2022
- Project Status
- Under Construction
- Client
- Urban Assets Zug AG
- Bauleitung
- Cerutti Partner Architekten AG
- Bauingenieur
- Moos Bauingenieure AG
- Verkehrsplanung
- IBV Hüsler AG
- Elektroplaner
- Hefti. Hess. Martignoni. AG
- Haustechnik
- Andy Wickart Haustechnik AG
- Brandschutz
- Pirmin Jung Ingenieure AG
- Bauphysik
- Martinelli + Menti AG











