Loft ESN
The Palmscher Park in Esslingen is a former army barracks from the late Wilhelmine era. It was transformed into a residential complex at the turn of the millennium and has become a very popular residential area thanks to its attractive hillside situation, only ten minutes walking distance from Esslingen town centre. When an agency moved out of a loft space at the short end of a two-storey block, a family with two small children sought to transform the site into their new home. An open and spacious living space with differentiated living zones and tantalising visual perspectives was created across 400 square metres.
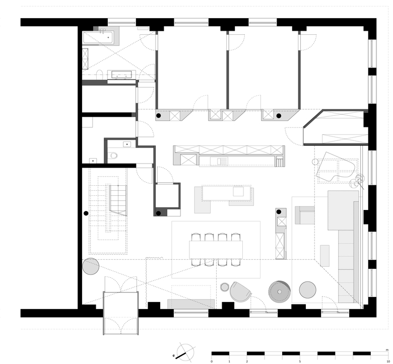
Now when a visitor enters the loft, a wide space opens up along a horizontal and vertical axis. The living area is only separated from the entrance area by an L-shaped filtering curtain. At the foot of the staircase a wardrobe is concealed behind a mirrored wall, reflecting Tom Dixon’s Mirror Ball infinitely back and forth.
The ground floor is laid out around the dining area. A long table is located in space by a carpet and slender, intersecting, pendant lamps. An open-plan kitchen connects well with the dining space thanks to three, freely stacked, solid surface cubes. A rear row of kitchen units houses different household appliances and a tall, narrow wine rack, creating an enticing mix of stainless steel, lacquered wood and solid surface. The tiled splash-back of golden, Italian glass tiles recalls the owners’ origins and childhood. The row of kitchen units also screens the children’s living space. Its rear wall containing integrated cupboards forms the corridor leading to the three children’s bedrooms.
A projecting section of wall divides the living and dining areas from one another. On the kitchen side its surface has been given a chalkboard finish. Coloured glass reflects the room on the other side, and flat screens are integrated into both sides of the wall. The living area is dominated by an expansive couch landscape and a deep-pile carpet. A grand piano stands at the enclosed end of the room in front of an upholstered fabric wall, surmounted by a skylight. Two doors opposite lead out onto the terrace. The wall surrounding them is mirrored from floor to ceiling. A branching pattern of lines is traced upon the mirrored surfaces and glass doors, awakening associations with twigs and branches and overlapping with the actual view of the garden. The mirrored wall borders a tall firewood container, which holds the fuel for the sculptural, suspended wood-burning stove. The precise, smooth glass surface and the randomly piled wood create an exciting contrast, which is reflected throughout the space. Warm natural materials and colours – including a dark-stained oak parquet floor, earthy tones on the walls and curtains, but also the shimmering golden surfaces – find a corresponding analogy in pink expanses of colour, cuboid solid surface forms and glass surfaces. The room receives an additional dynamic twist thanks to its sloping ceilings; their individual surfaces are accentuated by a contrasting colour scheme.
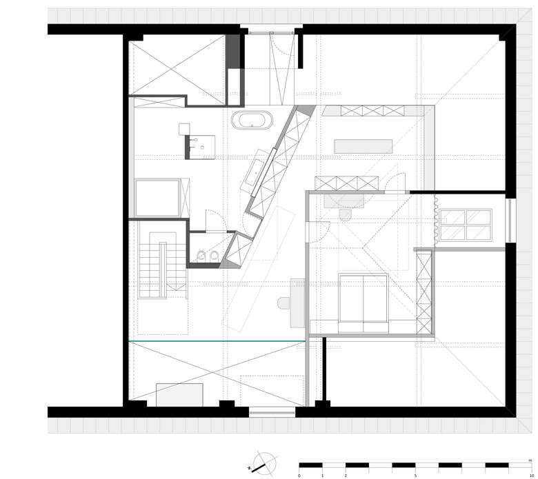
The upper level is the parents’ domain. A separate study was not part of the brief, so instead a small work station is located in an open-plan area. This is part of a house-in-house construction, which conceals the bedroom, because the clients specifically asked for a bedroom into which no light could permeate at all. This almost hermetically sealed room, the contours of which follow the simplest of house outlines – five strokes of a pencil – only retains contact with the outside world via the doors and a curtained passage to a skylight and windows. The ceiling’s warm dark blue is punctuated by a large grey circle. The circle and side walls serve as a blank canvas for a labyrinthine shadow-play that is cast in all directions by five fragile spheres of light.
The bathroom open upwards, providing a perfect counterpoint to the hideaway bedroom: A mirrored wall is the only element separating the bathroom from the corridor. Suspended light drops thus illuminate both areas and connect the collage-like objects and rooms to form a poetic landscape.
The Loft ESN embodies an exceptional transformation of an army barracks into an office, and finally into a spacious and exceptional living space.
Client
N.N.
Size
348 m²
Team
Peter Ippolito, Gunter Fleitz, You Seok Na, Markus Schmidt, Tim Lessmann, Lisa Seidl
- Year
- 2013
- Project Status
- Built














