8 Reihenhäuser Rutesheim

Rutesheim, Germany
Photo © 6H

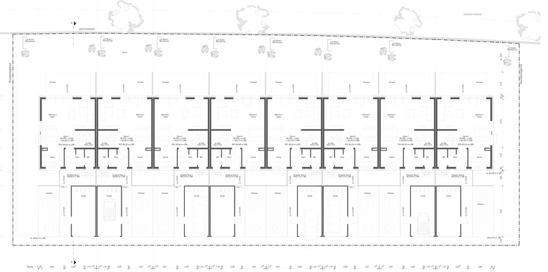
In Ruheheim entsteht ein Neubaugebiet. Hierbei wirkt unser Büro Architektur 6H mit 8 Reihenhäuser mit. Die Reihenhäuser sind zur östlich liegenden Ringstraße orientiert und bekommt somit eine Nord- Süd- Orientierung. Die Häuser reagieren mit kleinen Höhenversprüngen zueinander auf die abfallende Topografie. Das gesamte Grundstück erstreckt sich über eine Fläche von ca. 1.466m². So erhält ein einzelnes Grundstück im Durchschnitt eine Grundfläche von ca. 183m². Die Wohngebäude erstrecken sich über vier Geschosse, wobei das Erdgeschoss etwas zurückgesetzt wird, dadurch entsteht ein überdachter Eingangsbereich. Auch das 2. Obergeschoss bzw. Das Dachgeschoss wird zurückgenommen, wodurch eine Dachterrasse Richtung Osten entsteht. Eines der Häuser hat ca. 174m² Wohnfläche (inkl. Kellergeschoss). Auf der Rückseite der Häuser befinden sich eine weitere Terrassen mit Gartenanlagen. Diese ist Richtung Westen zur Flachter Straße orientiert und haben durchschnittlich eine Fläche von ca. 45m². Um dem Lärm der Flachter Straße zu mildern, wurde zwischen Garten und Straße eine Schallschutzwand erbaut. Jedes der acht Grundstücke verfügen über einen Garagenstellplatz und einen Stellplatz im Freien.

Photo © 6H
Photo © 6H
Visualisierung
Ansicht
Drawing © 6H
Grundriss Erdgeschoss
Drawing © 6H
Grundriss Obergeschoss
Drawing © 6H
Grundriss Dachgeschoss
Drawing © 6H
Architects
Architektur 6H
Year
2017
Project Status
Built

Related Projects 

  • Moos
    playze
  • Reiters Reserve Premium Suites
    BEHF Architects
  • Erweiterung und Instandsetzung Hallenbad Altstetten
    MIYO Visualisierung
  • Neubau von fünf Einfamilienhäusern
    Bäumlin + John Architekten ETH/SIA
  • The Forge at 105 Sumner Street in London
    Kiefer Klimatechnik GmbH

Magazine 

Other Projects by Architektur 6H 

Metropolis Berlin – Haus Mailand
Berlin, Germany
Quartier Lange Gasse Bondorf
Bondorf, Germany
Stadtausstellung Haus J2 Bundesgartenschau 2019
Heilbronn , Germany
Mehrgenerationen Häuser in Gechingen mit betreutem Wohnen und Tagespflege
Gechingen, Germany
Showroom Siedlungswerk
Stuttgart, Germany