Anbau Wohnhaus Dörfli
Dierikon, Switzerland
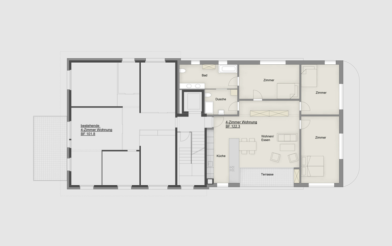
Am Rand des ISOS-Dorfzentrums von Dierikon soll ein "störender Bau" mit einem Anbau und Umbau des Bestandes aufgewertet werden. Ein dreigeschossiger Holzkörper wurde auf den gewerblich genutzten Sockel aufgelagert.
- Architects
- Rothenfluh & Partner Architekten
- Year
- 2016
- Project Status
- Built












