Bridge-Studio

Easton, USA

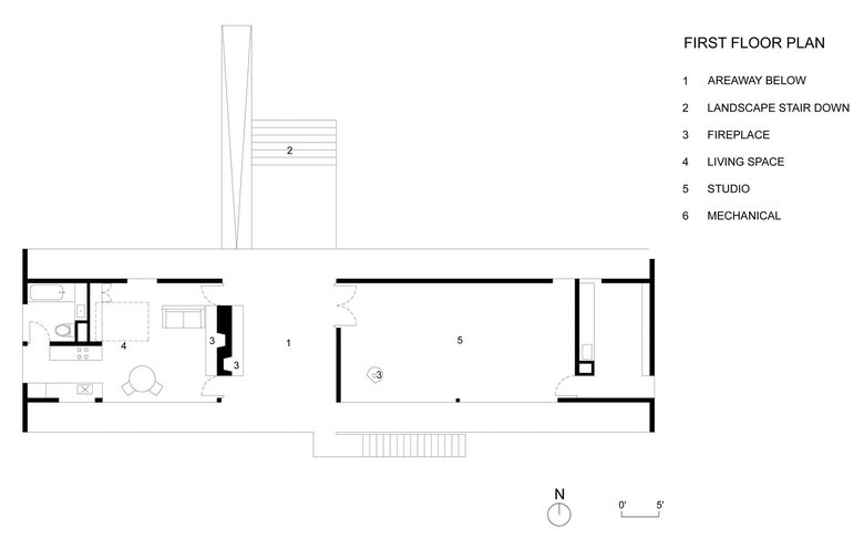
Bridge-Studio is a new artist studio building in Easton, Pennsylvania, designed for a couple who are both artists and gallery owners in New York City. Bridge-Studio houses a painting studio for the husband on the east side, and a writing studio on the west side. An open air breezeway runs through the center of Bridge-Studio, connecting back to the site with an entry ramp to the north. Bridge-Studio is entered by walking up the entry ramp, into the open breezeway overlooking the Delaware River, approximately 120 feet below the site.

The breezeway fireplace hearth houses a flue for a fireplace in the breezeway, in the writing studio, and a third fireplace in the outdoor area below the deck. In addition to producing their own bodies of work, the clients own a prominent gallery in Williamsburg, New York, and a gallery/ event space, also in Williamsburg. The clients regularly entertain artists and clients from their New York gallery at their home in Pennsylvania. The couple’s desire for an appropriate setting to entertain artist friends created part of the program for the Bridge-Studio.

The architects designed Bridge-Studio as a kit-of-parts, as the studio is being built by the husband, and has been in construction since 2005. The project is nearly complete. The insulation and the underside of the roof needs to be installed, as well as the insulation and the underside of the deck below. All exterior/ interior walls need to be insulated and sheet-rocked. The fireplace hearth is built, and the client has partially installed the exterior stone sheathing. The final construction will include installation of balcony and ramp rails, as required for inspection for the certificate of occupancy.

This project is in two parts, as the architects designed the building as a kit-of-parts, and have proposed the building as a proto-type for other settings, internationally. The plans for the building have been sent to clients in other cities, and are available for free through the architects’ website. Plans are also available through the clients’ gallery.

Architects
hMa
Year
2012
Project Status
Built

Related Projects 

  • Secondary School Schulstraße
    Kronaus Mitterer Architekten
  • GROHE Water Experience Center
    D’art Design Gruppe GmbH
  • Limmatquai 4
    Kästli Storen
  • Primary School Erlaaer Schleife
    Kronaus Mitterer Architekten
  • Ortsdurchfahrt Domat/Ems
    Luminum GmbH

Magazine 

Other Projects by hMa 

Holley Loft
New York, USA
Arts International
New York, USA
Infinity Chapel
Greenwich Village, USA
Juliana Curran Terian Design Center, Pratt Institute
Brooklyn, USA
Battery Park City North Neighborhood Master Plan
New y, USA